| ID # | RLS20074279 |
| Información | 5 dormitorios, 4 baños, lavadora, secadora, Dentro de la casa: 4400 ft2, 409m2, edificio tiene 3 viviendas, edificio tiene 3 pisos |
| Año de construcción | 1910 |
| Impuestos (por año) | $19,176 |
| Autobús | 1 minutos hasta B65 |
| 3 minutos hasta B63 | |
| 4 minutos hasta B57 | |
| 5 minutos hasta B61 | |
| 6 minutos hasta B103, B41, B45, B67 | |
| 7 minutos hasta B62 | |
| 8 minutos hasta B25, B26, B38, B52 | |
| Metro | 4 minutos hasta F, G |
| 5 minutos hasta A, C | |
| 8 minutos hasta 2, 3, 4, 5 | |
| 9 minutos hasta D, N, R, B, Q | |
| Estación tren | 0.6 millas de la estación "Atlantic Terminal" |
| 2.1 millas de la estación "Nostrand Avenue" | |
![]() |
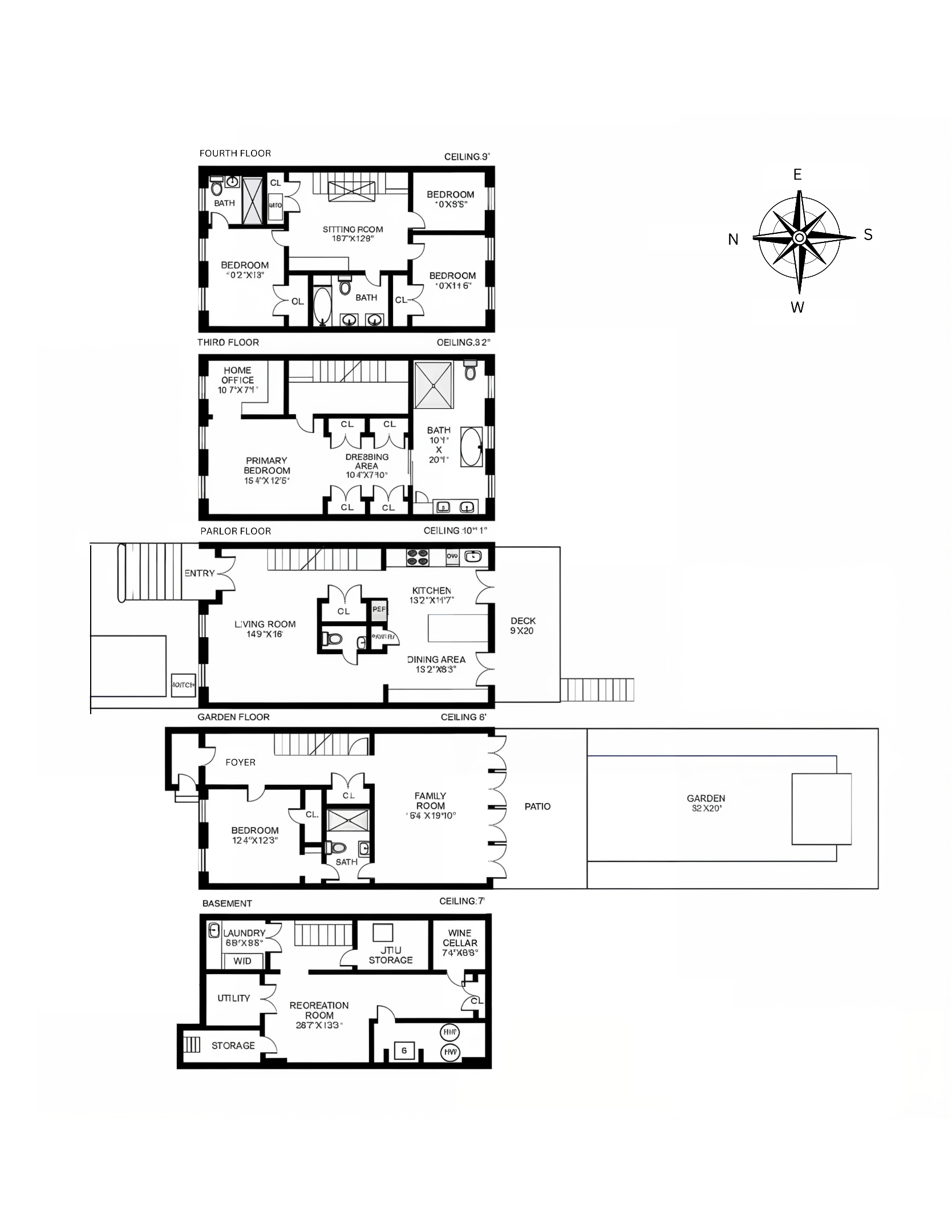
168 Bergen Street es una casa adosada completamente renovada en una de las calles arboladas más codiciadas de Brooklyn, en el Distrito Histórico de Boerum Hill. Construida originalmente en la década de 1850 por William Alexander y James Hughes, esta casa de 22 pies de ancho conserva su fachada original del siglo XIX y tiene aproximadamente 4,400 pies cuadrados, con 5 dormitorios y 4.5 baños.
El retranqueo y la amplia entrada del porche llevan al piso del salón, que funciona como el principal espacio de vida y entretenimiento, con una sala de estar bellamente proporcionada, una elegante escalera curva y una cocina abierta con una encimera y salpicadero de mármol, electrodomésticos de acero inoxidable, una isla central y un área de comedor con un banco empotrado. Acceda a la terraza trasera a través de dos grandes puertas de vidrio personalizadas que dan a un increíble jardín similar a un parque, con un exuberante y maduro paisajismo para una privacidad total.
La espaciosa suite principal ocupa todo el tercer piso, completa con un vestidor, un armario vestidor y un lujoso baño en suite con una ducha de vidrio, una bañera profunda, dos lavabos y mucho más. Tres bien equipadas habitaciones para huéspedes, dos baños completos y una sala de estar central componen el segundo piso, permitiendo una flexibilidad excepcional para satisfacer sus necesidades.
El nivel del jardín ofrece una suite de huéspedes adicional, además de un gran espacio versátil adecuado para un cine en casa o una sala de estar adicional. Las puertas de acordeón de piso a techo se abren al amplio jardín, mejorando la experiencia de vida interior/exterior.
Los puntos destacados adicionales incluyen una claraboya que inunda la casa con luz natural, pisos de espiga, y un sótano/gimnasio terminado con una bodega y un lavadero.
168 Bergen Street is a completely renovated townhouse on one of Brooklyn's most sought-after tree-lined streets in the Boerum Hill Historic District. Originally built in the 1850s by William Alexander and James Hughes, this 22-foot-wide house retains its original 19th-century facade and is approximately 4,400 square feet, featuring 5 bedrooms and 4.5 baths.
The setback and wide stoop entrance lead to the parlor floor, which serves as the main living and entertaining space, with a beautifully proportioned living room, an elegant curved staircase, and an open kitchen with a marble counter and backsplash, stainless steel appliances, a center island, and a dining area with a built-in banquette. Access the back terrace through two large custom glass doors that overlook the incredible park-like garden with lush, mature landscaping for ultimate privacy.
The spacious primary suite occupies the entire third floor, complete with a dressing room, a walk-in closet, and a luxurious en-suite bath with a glass shower, a soaker tub, dual sinks, and much more. Three well-appointed guest bedrooms, two full bathrooms, and a central sitting room comprise the second floor, allowing for exceptional flexibility to meet your needs.
The garden level offers an additional guest suite plus a large versatile space suitable for a home theater or an additional living room. Floor-to-ceiling accordion doors open to the expansive yard, enhancing the indoor/outdoor living experience.
Additional highlights include a skylight that floods the home with natural light, herringbone floors, and a finished basement/gym with a wine cellar and a laundry room.
This information is not verified for authenticity or accuracy and is not guaranteed and may not reflect all real estate activity in the market. © 2026 The Real Estate Board of New York, Inc., All rights reserved.







