| ID # | RLS20004008 |
| Información | 2 dormitorios, 2 baños, garaje, edificio tiene 96 viviendas, edificio tiene 13 pisos |
| Año de construcción | 1962 |
| Cuotas de mantenimiento | $2,989 |
| Metro | 1 minutos hasta Q |
| 6 minutos hasta 6 | |
| 10 minutos hasta F | |
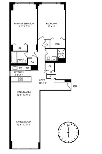
![]() |
Traiga su lista de deseos y diseñador para crear su residencia de ensueño. Rara vez disponible, el 8G abarca la longitud del edificio, ofreciendo exposiciones despejadas al sur y al oeste. Ambas habitaciones disfrutan de exposiciones al norte y son completamente silenciosas. Con ventanas adicionales orientadas al oeste en el área del comedor y la cocina, además de una sala de estar iluminada por el sol y orientada al sur, este apartamento se siente cálido y acogedor.
Redescubra 311 E 71st Street, ahora mejorado con importantes actualizaciones bajo la guía de su nuevo Administrador Residente. El edificio ha sometido a mejoras significativas, presumiendo de un impresionante puntaje de eficiencia energética de 100. Esto incluye la instalación de bombillas LED suaves y eficientes en energía en todo el edificio y mejoras en la sala y el sistema de compactación.
Junto con un vestíbulo recién renovado, el edificio ha instituido un programa de limpieza profunda mensual para todos los pasillos, asegurando áreas comunes impecables. El cumplimiento de la Ley Local 11 está cerca de completarse sin que el edificio haya impuesto una evaluación para este proyecto.
El Diplomat ofrece una variedad de comodidades que incluyen un administrador residente que vive en el edificio, personal de puerta atento (7 a.m. - 1 a.m.), instalaciones de lavandería renovadas, casilleros de almacenamiento y almacenamiento para bicicletas. Los pied-a-terres, regalos y co-compra están permitidos caso por caso y se permite el subarrendamiento después de 2 años de propiedad con aprobación de la junta. Lo siento, no se permiten mascotas.
Esta es una oferta excepcional, ideal para compradores que buscan valor. ¡No se pierda esta oportunidad! Lavadoras/secadoras ahora permitidas con aprobación de la junta.
Situado en el vibrante Upper East Side, está cerca de museos, tiendas, restaurantes, parques y áreas de juegos, y a solo una cuadra de la estación de tren Q, que ofrece un rápido viaje de cinco minutos a Midtown y al distrito teatral.
¡Aproveche esta increíble oportunidad! ¡Programe su visita hoy!
Bring your wish list and designer to create your dream residence. Rarely available, 8G spans the length of the building, offering unobstructed Southern and Western exposures. Both bedrooms enjoy Northern exposures and are pin-drop quiet. With extra west-facing windows in the dining area and kitchen, plus a sunlit south-facing living room, this apartment feels warm and inviting.
Rediscover 311 E 71st Street now enhanced by significant upgrades under the guidance of their new Resident Manager. The building has undergone significant enhancements, boasting an impressive 100 Energy Efficiency Score. This includes the installation of soft white energy-efficient LED bulbs throughout the building and improvements to the compactor room and system.
Along with a newly renovated lobby the building has instituted a monthly deep cleaning schedule for all hallways, ensuring pristine common areas. Local Law 11 compliance is nearing completion without the building instituting an assessment for this project.
The Diplomat offers an array of amenities including a live-in resident manager, attentive door staff (7am-1am), renovated laundry facilities, storage lockers, and bike storage. Pied-a-terres, gifting and co-purchasing are permitted on a case by case basis and subletting is allowed after 2 years of ownership with board approval. Sorry, pets are not permitted.
This is an exceptional deal, ideal for buyers seeking value. Don’t miss out on this opportunity! Washer/Dryers Now Permitted with board approval.
Situated in the vibrant Upper East Side, you're close to museums, shops, restaurants, parks, and playgrounds, and just a block away from the Q train, offering a quick five-minute ride to midtown and the theater district.
Seize this incredible opportunity! Schedule your visit today!
This information is not verified for authenticity or accuracy and is not guaranteed and may not reflect all real estate activity in the market. © 2026 The Real Estate Board of New York, Inc., All rights reserved.







