| ID # | RLS20071075 |
| Información | 4 dormitorios, 4 baños, Dentro de la casa: 2475 ft2, 230m2, edificio tiene 6 viviendas, edificio tiene 3 pisos DOM: 59 dias |
| Año de construcción | 1928 |
| Cuotas de mantenimiento | $1,334 |
| Impuestos (por año) | $15,324 |
| Autobús | 1 minutos hasta B48 |
| 3 minutos hasta B24, Q59 | |
| 6 minutos hasta B43, B62 | |
| 7 minutos hasta Q54 | |
| Metro | 3 minutos hasta L |
| 5 minutos hasta G | |
| Estación tren | 1.8 millas de la estación "Long Island City" |
| 1.8 millas de la estación "Hunterspoint Avenue" | |
![]() |
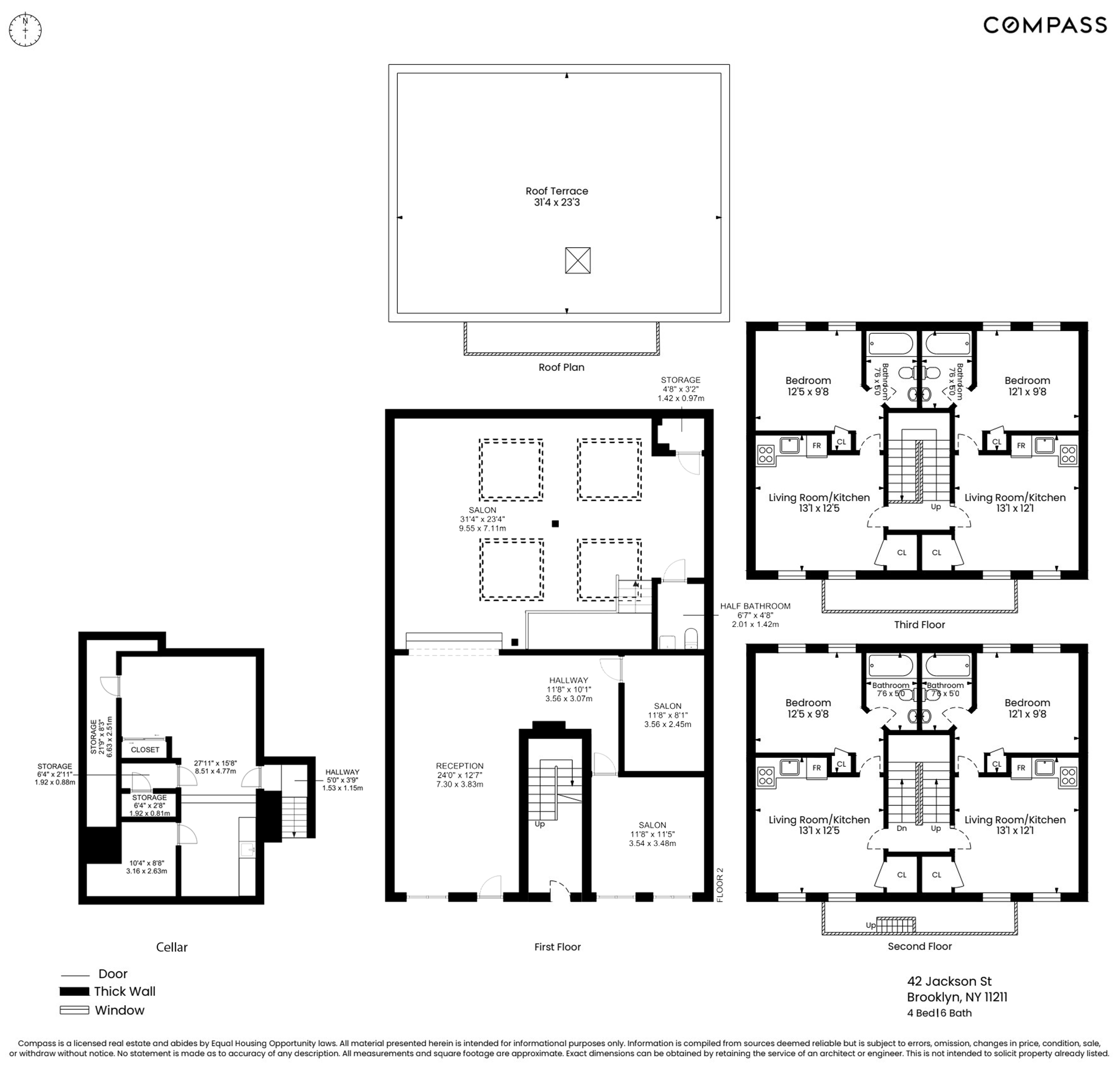
42 Jackson Street es un edificio de uso mixto completamente renovado, ubicado en East Williamsburg, Brooklyn. La propiedad consta de cuatro apartamentos residenciales de una habitación en el mercado libre y un espacio comercial en la planta baja con sótano.
Todas las unidades residenciales cuentan con diseños uniformes y acabados modernos, y actualmente están alquiladas, proporcionando ingresos inmediatos y simplicidad operativa. El espacio comercial en la planta baja se beneficia de una fuerte presencia en la calle y espacio adicional en el sótano, ofreciendo flexibilidad para una variedad de usos comerciales.
Idealmente ubicado cerca de Williamsburg y Greenpoint, con acceso conveniente al transporte, restaurantes y comodidades del vecindario, este edificio de uso mixto llave en mano presenta una oportunidad atractiva en uno de los submercados más activos y deseables del norte de Brooklyn.
42 Jackson Street is a fully renovated mixed-use building located in East Williamsburg, Brooklyn. The property consists of four free-market one-bedroom residential apartments and one ground-floor commercial space with a basement.
All residential units feature uniform layouts and modern finishes and are currently leased, providing immediate in-place income and operational simplicity. The ground-floor commercial space benefits from strong street presence and additional basement space, offering flexibility for a range of commercial uses.
Ideally positioned near Williamsburg and Greenpoint, with convenient access to transportation, dining, and neighborhood amenities, this turnkey mixed-use building presents a compelling opportunity in one of North Brooklyn’s most active and desirable submarkets.
This information is not verified for authenticity or accuracy and is not guaranteed and may not reflect all real estate activity in the market. © 2026 The Real Estate Board of New York, Inc., All rights reserved.







