| ID # | RLS20077057 |
| Información | 3 dormitorios, 2 baños, Dentro de la casa: 1864 ft2, 173m2, edificio tiene 6 viviendas DOM: 2 dias |
| Cuotas de mantenimiento | $761 |
| Impuestos (por año) | $9,732 |
| Autobús | 2 minutos hasta B57 |
| 5 minutos hasta B65 | |
| 8 minutos hasta B61, B63 | |
| 9 minutos hasta B103 | |
| 10 minutos hasta B62 | |
| Metro | 4 minutos hasta F, G |
| 10 minutos hasta A, C | |
| Estación tren | 0.8 millas de la estación "Atlantic Terminal" |
| 2.3 millas de la estación "Nostrand Avenue" | |
![]() |
Primera jornada de puertas abiertas Domingo, 15/3 1-2pm
Dúplex con jardín y patio trasero privado en Boerum Hill
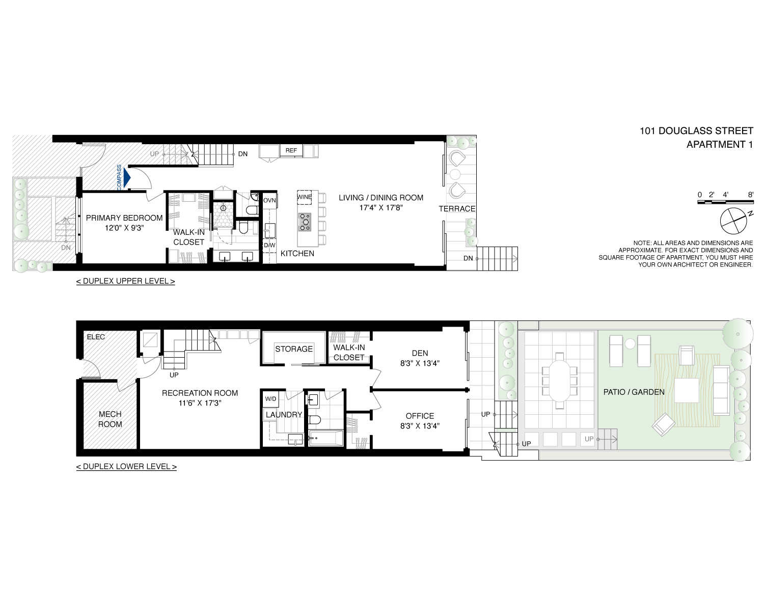
La unidad 1 en 101 Douglass Street es un amplio dúplex con jardín que cuenta con 1,864 pies cuadrados de espacio interior y 800 pies cuadrados de espacio exterior privado. Esta residencia lista para habitar combina la escala y el confort de vivir en una casa adosada con la conveniencia de la propiedad de un condominio boutique.
Este hogar lleno de luz natural es un sueño para quienes disfrutan del entretenimiento. El nivel principal cuenta con una sala de estar y comedor abierto y expansivo que fácilmente puede acomodar una zona de asientos y una mesa para 8 personas. La habitación está enmarcada por puertas de vidrio corredizas de piso a techo que se abren a una terraza que da al patio trasero privado. La cocina del chef está cuidadosamente diseñada con un paquete de electrodomésticos de alta gama, gabinetes personalizados y abundante espacio de mostrador y almacenamiento tanto para la vida diaria como para recibir invitados.
La suite principal tiene un tamaño generoso y cuenta con un vestidor personalizado y un baño tipo spa en suite con dos lavabos. En el nivel inferior, una amplia sala de recreación / medios ofrece flexibilidad para una oficina en casa, gimnasio o sala de juegos, equipada con muebles empotrados personalizados para mayor funcionalidad.
Dos habitaciones adicionales están ubicadas en la parte trasera de la casa y dan al patio trasero privado. Este nivel también cuenta con suelos radiantes en toda su extensión, un baño completo, una lavandería y un armario de pasillo de gran tamaño para almacenamiento adicional. El patio ajardinado privado de 800 pies cuadrados ha sido mejorado con un sistema de riego completo.
101 Douglass Street es un condominio boutique de 6 unidades con bajas cuotas mensuales, situado en una tranquila calle alineada de casas adosadas en el corazón de Boerum Hill. El edificio está rodeado de las mejores opciones de comida y compras de la zona y se encuentra convenientemente ubicado a una corta distancia a pie de las líneas de metro F/G para un fácil acceso a la ciudad.
First Open House Sunday, 3/15 1-2pm
Garden Duplex with Private Backyard in Boerum Hill
Unit 1 at 101 Douglass Street is a sprawling garden duplex boasting 1,864 SF of interior space and 800 SF of private outdoor space. This turnkey residence combines the scale and comfort of townhouse living with the convenience of boutique condominium ownership.
This sun filled home is an entertainer's dream. The main level features a bright, expansive open-concept living and dining room easily fitting a seating area and an 8 person table. The room is framed by floor-to-ceiling sliding glass doors that open onto a deck overlooking the private backyard. The chef’s kitchen is thoughtfully designed with a top-of-the-line appliance package, custom cabinetry, and abundant counter and storage space for both everyday living and hosting.
The primary suite is generously proportioned and features a custom walk-in closet and a spa-like ensuite bathroom with dual vanities. On the lower level, a spacious recreation / media room provides flexibility for a home office, gym, or playroom, outfitted with custom built-ins for functionality.
Two additional rooms are located at the rear of the home and look onto the private backyard. This level also features radiant heated floors throughout, a full bathroom, laundry room, and an oversized hallway closet for additional storage. The 800-square-foot private landscaped yard has been upgraded with a full irrigation system.
101 Douglass Street is a 6-unit boutique condominium with low monthlies located on a quiet, townhouse-lined block in the heart of Boerum Hill. The building is surrounded by the area's best food and shopping and is conveniently located a short walk to the F/G subway lines for easy commuting into the city.
This information is not verified for authenticity or accuracy and is not guaranteed and may not reflect all real estate activity in the market. © 2026 The Real Estate Board of New York, Inc., All rights reserved.






