| ID # | RLS20076449 |
| Información | 3 dormitorios, 2 baños, Dentro de la casa: 3050 ft2, 283m2, edificio tiene 18 viviendas, edificio tiene 11 pisos DOM: 3 dias |
| Año de construcción | 1895 |
| Cuotas de mantenimiento | $6,365 |
| Metro | 2 minutos hasta R, W |
| 3 minutos hasta 6 | |
| 6 minutos hasta B, D, F, M | |
| 9 minutos hasta L, A, C, E, 4, 5 | |
| 10 minutos hasta N, Q | |
![]() |
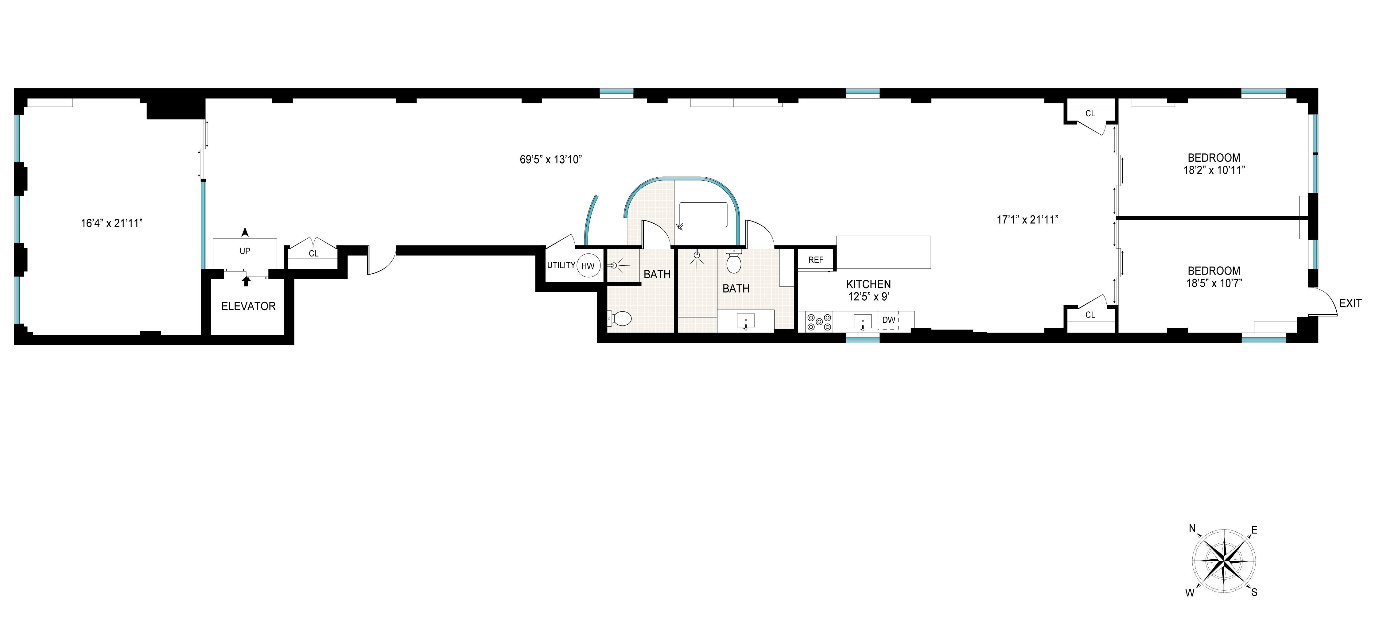
Ubicado alto sobre el corazón de NoHo, la Residencia #10 en 714 Broadway presenta una rara oportunidad de poseer un expansivo loft de 3,050 pies cuadrados en uno de los barrios más codiciados de Manhattan. Situada en el décimo piso de un boutique pre-guerra co-op y disfrutando de vistas directas a Washington Square Park, esta notable residencia captura la esencia de la auténtica vida en lofts del centro—una escala extraordinaria, luz y un potencial infinito.
Con cuatro exposiciones y ventanas de gran tamaño, el hogar se baña en hermosa luz natural durante todo el día mientras ofrece amplias vistas de la ciudad y panorámicas del parque. El extenso diseño y las proporciones dramáticas crean un entorno inspirador para una residencia cuidadosamente diseñada adaptada a la vida moderna.
La impresionante gran sala del loft ofrece proporciones generosas ideales tanto para la vida cotidiana como para el entretenimiento, con techos altos y paredes de ventanas que enmarcan el paisaje urbano circundante. La sensación de volumen y apertura es inconfundiblemente de loft, creando un telón de fondo impactante para reuniones, colecciones de arte o simplemente disfrutando de la luz natural que llena el espacio desde múltiples direcciones.
Este loft de tres dormitorios, abierto y aireado, está actualmente configurado como un dormitorio con la sala del frente utilizada actualmente como un estudio. La escala expansiva también permite la creación cuidadosa de dormitorios adicionales, una oficina en casa, una biblioteca o un estudio creativo, a la vez que mantiene amplios espacios para vivir y entretener.
La cocina está centrada en una gran isla, ofreciendo amplio espacio de trabajo, extensa cabinetry y generoso almacenamiento—perfectamente adecuada tanto para cocinar a diario como para entretener.
714 Broadway es un íntimo co-op de boutique pre-guerra con elevador que ofrece acceso directo al elevador con llave, creando un estilo de vida en loft privado y exclusivo que rara vez se encuentra en el centro de Manhattan.
Ubicado en el corazón del vibrante distrito cultural de NoHo, el edificio se encuentra a momentos de Washington Square Park, Astor Place, NYU y el Union Square Greenmarket. El vecindario alberga destinos célebres como Indochine, Atla, Lafayette, Il Buco, Vic’s, La Colombe, Great Jones Distillery, Acme y The Nines, junto con teatro de clase mundial en el Public Theater.
El acceso conveniente a las líneas de metro 6, B, D, F, M, R, W, A, C y E hace que el transporte sea sin esfuerzo.
Un raro loft de alto piso en NoHo con escala excepcional, hermosa luz natural y vistas icónicas del parque—ofreciendo una oportunidad única para crear una residencia verdaderamente especial en el centro.
Perched high above the heart of NoHo, Residence #10 at 714 Broadway presents a rare opportunity to own an expansive 3,050-square-foot loft in one of downtown Manhattan’s most coveted neighborhoods. Situated on the 10th floor of a boutique pre-war co-op and enjoying direct views of Washington Square Park, this remarkable residence captures the essence of authentic downtown loft living—extraordinary scale, light, and endless potential.
With four exposures and oversized windows, the home is bathed in beautiful natural light throughout the day while offering sweeping city views and park vistas. The expansive layout and dramatic proportions create an inspiring setting for a thoughtfully designed residence tailored to modern living.
The loft’s impressive great room offers gracious proportions ideal for both everyday living and entertaining, with soaring ceilings and walls of windows that frame the surrounding cityscape. The sense of volume and openness is unmistakably loft-like, creating a striking backdrop for gatherings, art collections, or simply enjoying the natural light that fills the space from multiple directions.
This open and airy three bedroom loft is currently configured as a two bedroom with the front room presently used as a den. The expansive scale also allows for the thoughtful creation of additional bedrooms, a home office, library, or creative studio while maintaining generous living and entertaining spaces.
The kitchen is centered around a large island, offering ample workspace, extensive cabinetry, and generous storage—perfectly suited for both everyday cooking and entertaining.
714 Broadway is an intimate boutique pre-war elevator co-op offering direct keyed elevator access, creating a private and exclusive loft lifestyle rarely found in downtown Manhattan.
Located in the heart of NoHo’s vibrant cultural district, the building sits moments from Washington Square Park, Astor Place, NYU, and the Union Square Greenmarket. The neighborhood is home to celebrated destinations including Indochine, Atla, Lafayette, Il Buco, Vic’s, La Colombe, Great Jones Distillery, Acme, and The Nines, along with world-class theater at The Public Theater.
Convenient access to the 6, B, D, F, M, R, W, A, C, and E subway lines makes transportation effortless.
A rare high-floor NoHo loft with exceptional scale, beautiful natural light, and iconic park views—offering a unique opportunity to create a truly special downtown residence.
This information is not verified for authenticity or accuracy and is not guaranteed and may not reflect all real estate activity in the market. © 2026 The Real Estate Board of New York, Inc., All rights reserved.







