| MLS # | 968596 |
| Información | Terreno: 1.84 acres DOM: 1 dias |
| Impuestos (por año) | $6,384 |
| Estación tren | 2.6 millas de la estación "Southampton" |
| 2.7 millas de la estación "Bridgehampton" | |
![]() |
Donde los Hamptons aún se sienten como los Hamptons
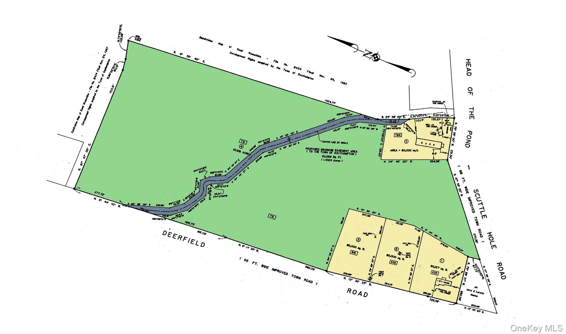
Presentando una oferta de tierra extraordinaria en un tramo icónico de Water Mill, donde el cielo abierto se encuentra con tierras agrícolas protegidas y la belleza atemporal de los Hamptons se despliega en su forma más pura. Esta rara colección presenta cuatro lotes de propiedad de poco más de dos acres, cada uno con zonificación R-80 y adyacente directamente a una impresionante reserva agrícola protegida de 33 acres, que también está disponible para adquisición. Cada parcela ofrece la escala y flexibilidad para crear un complejo de clase mundial en los Hamptons que podría incluir una gran residencia principal, piscina y casa de piscina, amplios patios, terrazas y canchas de tenis, todo enmarcado por la tierra agrícola y el vasto cielo abierto. Las cinco parcelas, incluida la reserva agrícola, están disponibles como un paquete o se pueden comprar individualmente. Esto es más que tierra. Es privacidad protegida, vistas ininterrumpidas y un entorno que captura lo que los Hamptons siempre han prometido: espacio, serenidad y atractivo duradero.
Este listado se ofrece por sí mismo o como un paquete con dos o más propiedades dentro de 635, 639, 641 y 731 Deerfield Rd y 749 Head of Pond Rd.
Where the Hamptons Still Feel Like the Hamptons
Introducing an extraordinary land offering in an iconic stretch of Water Mill, where the open sky meets preserved farmland and the timeless beauty of the Hamptons unfolds in its purest form. This rare assemblage presents four shy-two acre estate lots, each with R-80 zoning and direct adjacency to a breathtaking 33 acre protected agricultural reserve, also available for acquisition. Each parcel offers the scale and flexibility to create a world class Hamptons compound which could include a grand main residence, pool and pool house, generous patios, decking and tennis- again all framed by the farmland and wide open sky. All five parcels including the agricultural reserve are available as a package or may be purchased individually. This is more than land. It's protected privacy, uninterrupted views, and a setting that captures what The Hamptons has always promised - space, serenity, and lasting appeal.
This listing is offered by itself or as a package with two or more properties within 635,639,641&731 Deerfield Rd and 749 Head of Pond Rd.
This information is not verified for authenticity or accuracy and is not guaranteed and may not reflect all real estate activity in the market. Listing courtesy of Corcoran © 2026




