| MLS # | 968224 |
| Información | 3 dormitorios, 2 baños, lavavajillas, lavadora, secadora, garaje, AC, Terreno: 0.34 acres, Dentro de la casa: 1428 ft2, 133m2 DOM: 21 dias |
| Año de construcción | 2026 |
| Tipo de combustible | Calefacción de gas |
| Tipo de calor | Aire Caliente |
| Aire acondicionado | Aire central |
| Sótano | Sótano Parcial |
| Tipo de garaje | Adjunto |
| Estación tren | 6.2 millas de la estación "Port Jefferson" |
| 8.3 millas de la estación "Yaphank" | |
![]() |
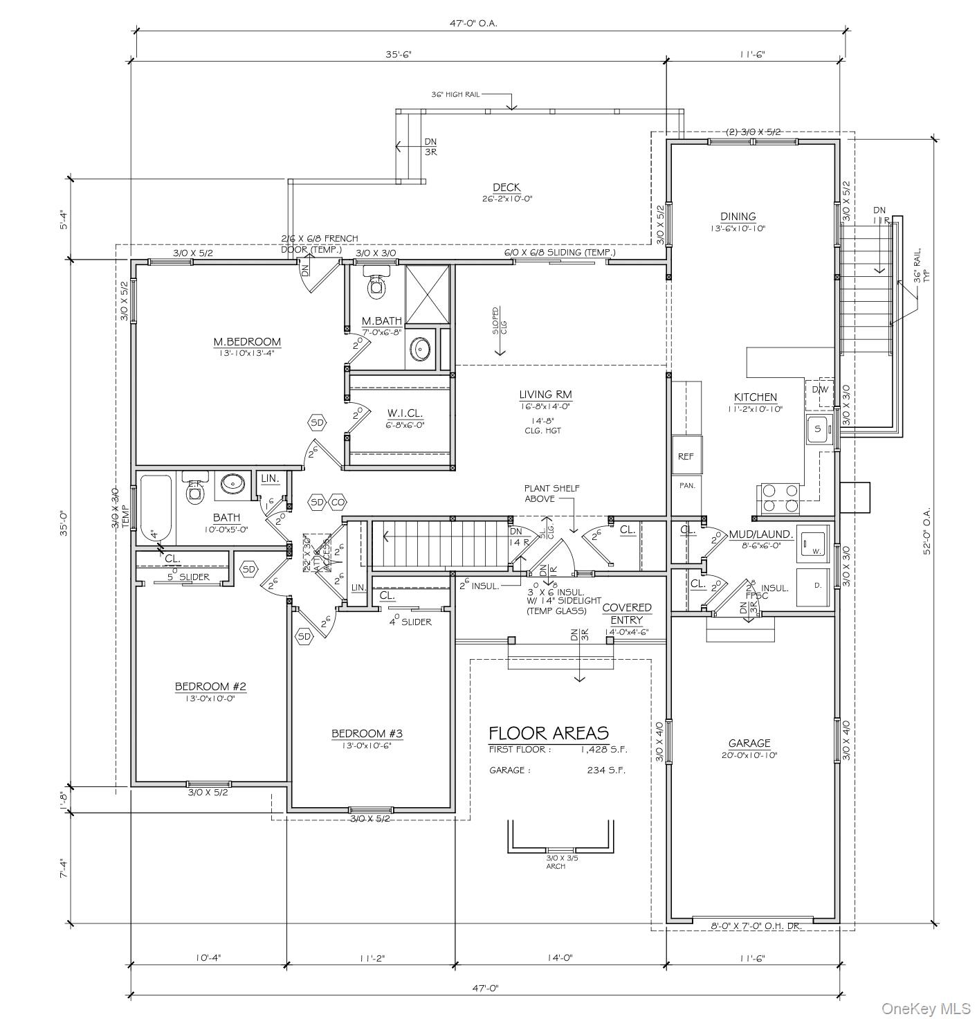
Nueva Construcción – A Construir - La Colección Terra en Los Estates de Rocky Point
Bienvenido a The Terra Hudson Ranch, una casa de campo de un solo nivel bellamente diseñada por el constructor líder de Long Island, Terra Construction Group, ubicada en los deseables Estates de Rocky Point. Esta casa cuidadosamente diseñada ofrece aproximadamente 1,428 pies cuadrados de espacio habitable cómodo, con 3 dormitorios, 2 baños completos, un garaje para 1 autos, sótano parcial, lavadero/cuarto de barro, y techos altos que realzan la sensación de amplitud del hogar.
El diseño brillante y acogedor muestra una sala de estar dramática con techos de 14 pies, creando un punto focal espacioso y aireado para la casa. Elegantes pisos de roble rojo o roble blanco ingeniería, molduras interiores personalizadas, y un diseño de concepto abierto conectan perfectamente la sala de estar, el área de comedor, y la cocina—ideal tanto para la vida cotidiana como para el entretenimiento.
La cocina de diseño cuenta con gabinetes de arce estilo shaker con gabinetes de pared de 42”, encimeras de cuarzo, salpicadero de cerámica, fregadero de acero inoxidable con grifo extraíble Kohler o Delta, y un paquete de electrodomésticos de acero inoxidable premium que incluye un refrigerador de 36” con hielo y agua, una estufa de gas de 30” con campana de acero inoxidable, microondas empotrado, y lavavajillas de acero inoxidable.
La suite principal ofrece un refugio privado con una ducha personalizada de azulejos con puerta de vidrio, pisos de cerámica, tocador de arce personalizado con encimera de granito o cuarzo, y grifos Kohler o Delta. Dos dormitorios adicionales proporcionan un espacio cómodo para invitados, o una oficina en casa.
Las comodidades adicionales incluyen un cuarto de barro dedicado con área de lavandería, que proporciona funcionalidad práctica todos los días directamente desde el garaje.
Construida con calidad y eficiencia en mente, la casa incluye aire acondicionado central, aislamiento eficiente en energía, fontanería PEX, y construcción de alta calidad en todo.
Los aspectos destacados exteriores incluyen revestimiento de vinilo sin mantenimiento, tejas de techo arquitectónico de 30 años, ventanas de vinilo de doble acristalamiento, entrada de asfalto con borde de adoquines y pasarela, servicios públicos subterráneos, césped sembrado, y un sistema de rociadores subterráneo (hasta 10 zonas). La casa también está lista para energía solar para una futura eficiencia energética.
Disfruta de la facilidad de vivir en un solo piso con alturas de techo dramáticas, acabados modernos, y mano de obra de calidad en esta emocionante nueva comunidad.
New Construction – To Be Built - The Terra Collection at The Estates at Rocky Point
Welcome to The Terra Hudson Ranch, a beautifully designed one-level ranch home by Long Island’s premier builder, Terra Construction Group, located in the desirable Estates at Rocky Point. This thoughtfully crafted home offers approximately 1,428 square feet of comfortable living space, featuring 3 bedrooms, 2 full bathrooms, a 1-car garage, partial basement, mudroom/laundry room, and soaring ceilings that enhance the open feel of the home.
The bright and inviting layout showcases a dramatic living room with 14-foot ceilings, creating a spacious and airy focal point for the home. Elegant red oak or engineered white oak flooring, custom interior moldings, and an open-concept design seamlessly connect the living room, dining area, and kitchen—perfect for both everyday living and entertaining.
The designer kitchen features shaker-style maple cabinetry with 42” wall cabinets, quartz countertops, ceramic tile backsplash, stainless steel sink with Kohler or Delta pull-out faucet, and a premium stainless appliance package including a 36” refrigerator with ice and water, 30” gas range with stainless canopy hood, built-in microwave, and stainless dishwasher.
The primary suite offers a private retreat featuring a custom tiled shower with glass door, ceramic tile floors, custom maple vanity with granite or quartz countertop, and Kohler or Delta fixtures. Two additional bedrooms provide comfortable space for guests, or a home office.
Additional conveniences include a dedicated mudroom with laundry area, providing practical everyday functionality directly off the garage.
Built with quality and efficiency in mind, the home includes central air conditioning, energy-efficient insulation, PEX plumbing, and high-quality construction throughout.
Exterior highlights include maintenance-free vinyl siding, 30-year architectural roof shingles, vinyl double-hung windows, asphalt driveway with paver border and walkway, underground utilities, seeded lawn, and an in-ground sprinkler system (up to 10 zones). The home is also solar-ready for future energy efficiency.
Enjoy the ease of one-floor living with dramatic ceiling heights, modern finishes, and quality craftsmanship in this exciting new community.
This information is not verified for authenticity or accuracy and is not guaranteed and may not reflect all real estate activity in the market. Listing courtesy of Coldwell Banker American Homes © 2026







