| ID # | RLS20074314 |
| Información | OLD PS 9 OWNERS COR 0 dorm. (estudios), edificio tiene 21 viviendas, edificio tiene 4 pisos DOM: 25 dias |
| Año de construcción | 1895 |
| Cuotas de mantenimiento | $1,163 |
| Autobús | 1 minutos hasta B69 |
| 2 minutos hasta B41 | |
| 5 minutos hasta B65, B67 | |
| 6 minutos hasta B45 | |
| 10 minutos hasta B48 | |
| Metro | 2 minutos hasta 2, 3 |
| 4 minutos hasta B, Q | |
| Estación tren | 0.6 millas de la estación "Atlantic Terminal" |
| 1.1 millas de la estación "Nostrand Avenue" | |
![]() |
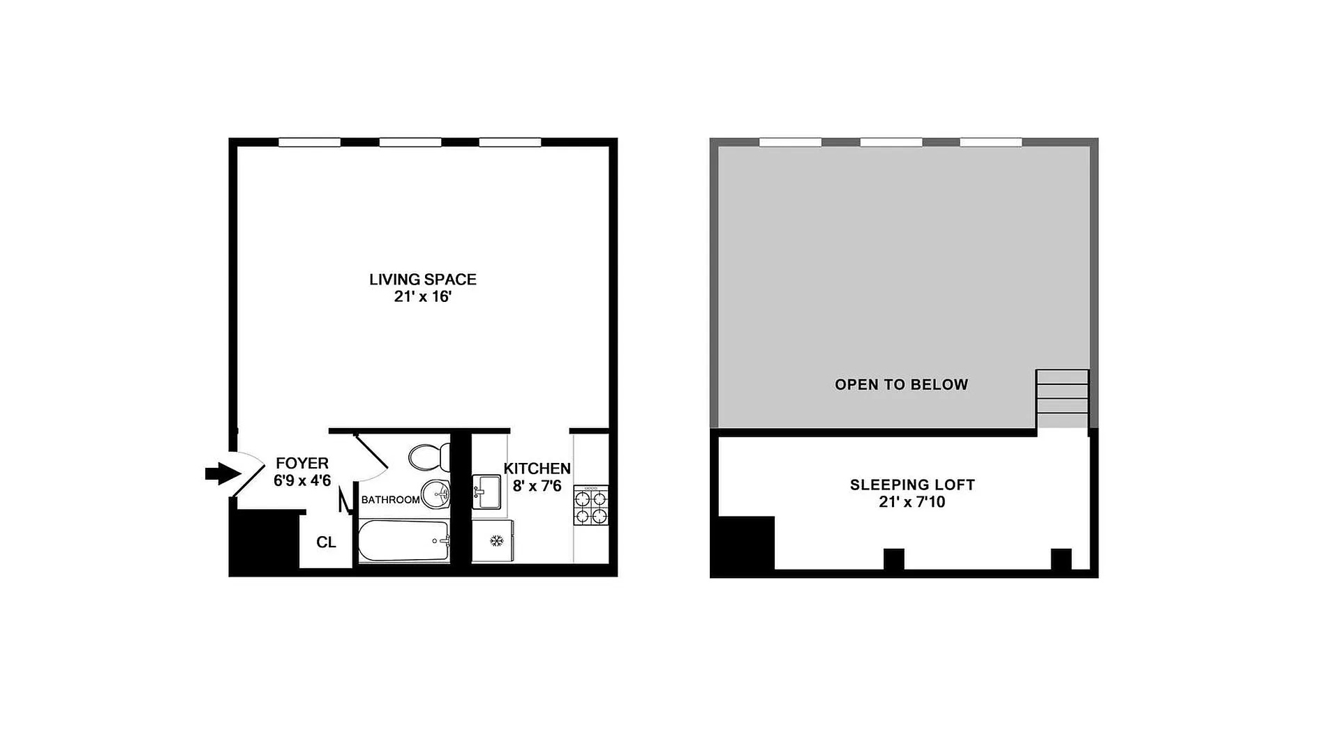
La Residencia 3C en 279 Sterling Place ofrece una oportunidad verdaderamente distintiva de poseer un antiguo aula transformada cuidadosamente en un luminoso dúplex estudio dentro de uno de los edificios cooperativos más arquitectónicamente significativos de Prospect Heights. Originalmente construida en 1895 como el Anexo de la Escuela Pública 9 y magistralmente diseñada por el renombrado arquitecto de Brooklyn James W. Naughton en el estilo Románico Revival, esta estructura histórica, catalogada en el Registro Nacional de Lugares Históricos, fue convertida en una cooperativa residencial en 1989, preservando su extraordinaria escala, artesanía y alma histórica. Una vez un espacio de aprendizaje e imaginación, la Residencia 3C ahora encarna el romance de la reutilización adaptativa, donde los techos altos y las ventanas sobredimensionadas, fieles a las proporciones originales del aula, inundan el área de sala y comedor abierta con luz natural, creando una sensación de volumen y amplitud rara vez encontrada en la vida en estudio. El meticulosamente diseñado diseño dúplex maximiza el espacio vertical, con un área de sueño elevada situada por encima del nivel principal de la sala, ofreciendo tanto interés arquitectónico como separación funcional. Los pisos de madera recorren todo el espacio, anclando las dramáticas alturas de los techos con calidez y textura, mientras que una cocina separada ofrece una delimitación práctica sin comprometer el flujo tipo loft. Un baño completo completa el hogar, y la configuración general proporciona flexibilidad, eficiencia y carácter en igual medida. El propio Anexo de la Escuela Pública 9 es una cooperativa de ascensor meticulosamente mantenida que presenta un hermoso patio común ajardinado, una fachada impresionante de ladrillo, arenisca y terracota con detalles neoclásicos, y una presencia innegable en la esquina de Sterling Place y Vanderbilt Avenue. Posicionado a solo unos momentos de Grand Army Plaza, Prospect Park, el Jardín Botánico de Brooklyn, el Museo de Brooklyn y la Biblioteca Pública de Brooklyn, y rodeado por los vibrantes corredores de restaurantes y boutiques de las avenidas Vanderbilt, Washington y Flatbush, esta ubicación te coloca en el corazón cultural y recreativo de Brooklyn, con acceso sin interrupciones a las líneas de metro 2, 3, B y Q. Se permiten mascotas con aprobación. La Residencia 3C es más que un estudio; es la oportunidad de vivir dentro de una pieza de la historia de Brooklyn, donde la grandiosa arquitectura, la luz natural y la vitalidad del vecindario convergen para crear un hogar que se siente tanto inspirador como profundamente arraigado en el lugar. Las fotos están virtualmente escenificadas.
Residence 3C at 279 Sterling Place offers a truly distinctive opportunity to own a former classroom thoughtfully transformed into a sun-drenched duplex studio within one of Prospect Heights' most architecturally significant cooperative buildings. Originally constructed in 1895 as Public School 9 Annex and masterfully designed by renowned Brooklyn architect James W. Naughton in the Romanesque Revival style, this landmarked structure-listed on the National Register of Historic Places-was converted to a residential co-op in 1989, preserving its extraordinary scale, craftsmanship, and historic soul. Once a space of learning and imagination, Residence 3C now embodies the romance of adaptive reuse, where soaring ceilings and oversized windows-true to its original classroom proportions-flood the open living and dining area with natural light, creating a sense of volume and airiness rarely found in studio living. The thoughtfully designed duplex layout maximizes vertical space, with a lofted sleeping area perched above the main living level, offering both architectural interest and functional separation. Hardwood flooring runs throughout, grounding the dramatic ceiling heights with warmth and texture, while a separate kitchen provides practical delineation without compromising the loft-like flow. A full bath completes the home, and the overall configuration delivers flexibility, efficiency, and character in equal measure. P.S. 9 Annex itself is a meticulously maintained elevator cooperative featuring a beautifully landscaped common courtyard, a striking facade of brick, sandstone, and terra cotta with neo-classical detailing, and an undeniable presence at the corner of Sterling Place and Vanderbilt Avenue. Positioned just moments from Grand Army Plaza, Prospect Park, the Brooklyn Botanic Garden, the Brooklyn Museum, and the Brooklyn Public Library, and surrounded by the vibrant dining and boutique corridors of Vanderbilt, Washington, and Flatbush Avenues, this location places you at the cultural and recreational heart of Brooklyn, with seamless access to the 2, 3, B, and Q subway lines. Pets are permitted upon approval. Residence 3C is more than a studio-it is the opportunity to live within a piece of Brooklyn history, where grand architecture, natural light, and neighborhood vitality converge to create a home that feels both inspiring and deeply rooted in place. Photos are virtually staged.
This information is not verified for authenticity or accuracy and is not guaranteed and may not reflect all real estate activity in the market. © 2026 The Real Estate Board of New York, Inc., All rights reserved.






