TERRENOS
Dirección: ‎3146 Sands Place
Código Postal: 10461
分享到
$199,999
ID # 962684
Spanish
Are you the listing agent? Sign up to add your name and cell #
eXp Realty Oficina: ‍888-276-0630

$199,999 - 3146 Sands Place, Bronx, NY 10461|ID # 962684

Property Description « Spanish »

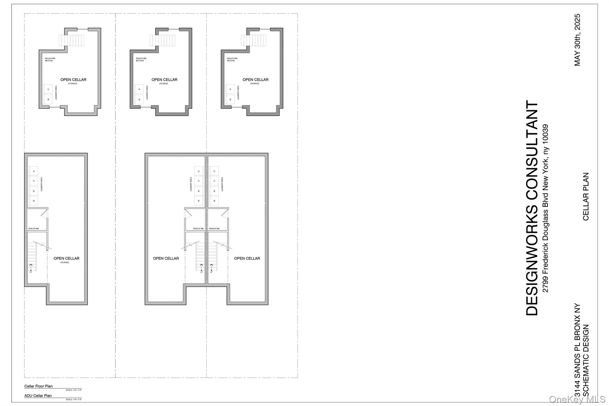
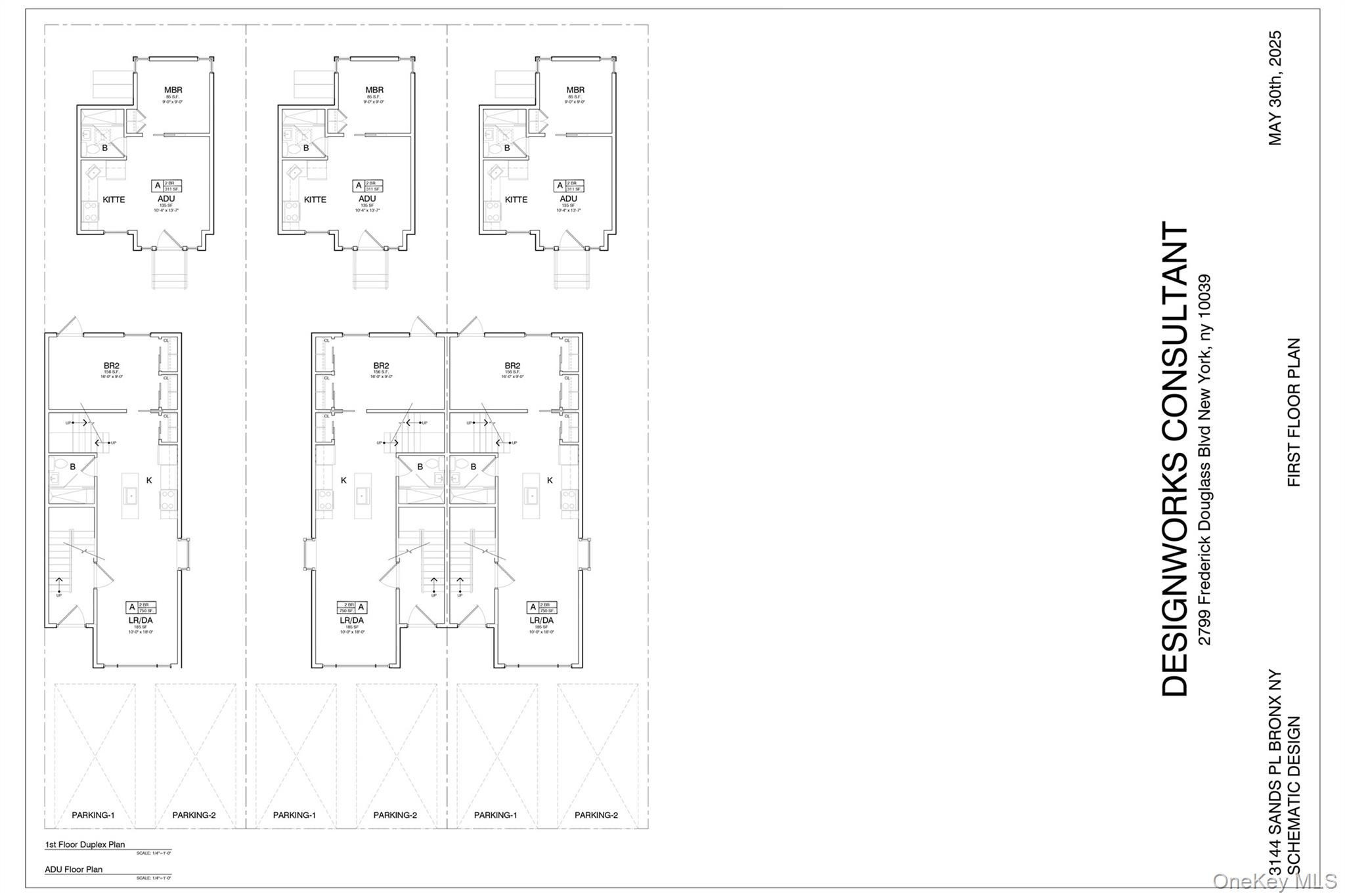
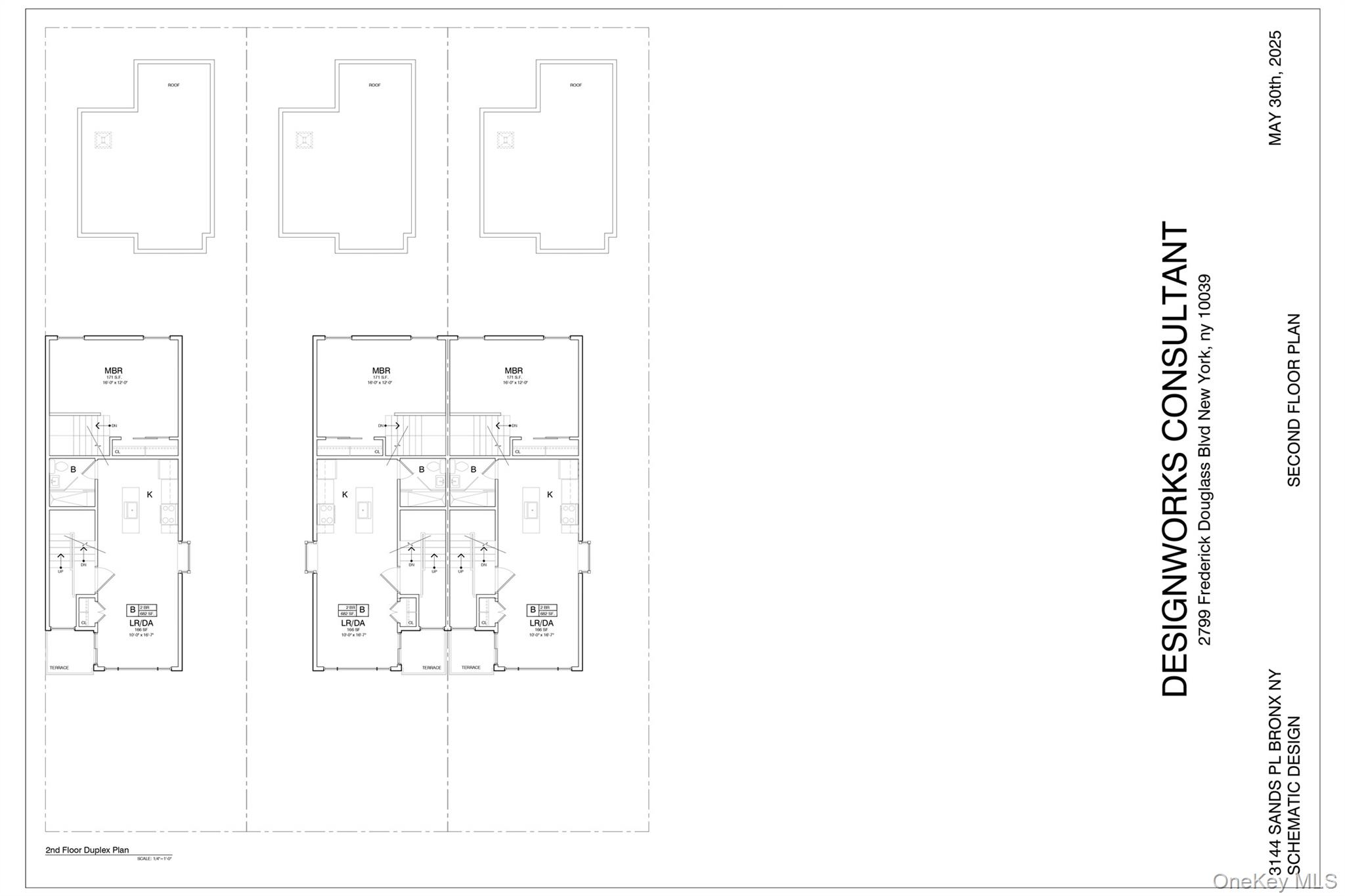
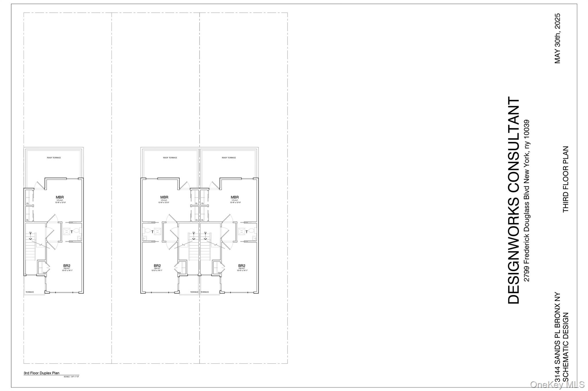
Aquí hay un raro acuerdo de desarrollo en una ubicación privilegiada de Pelham Bay. 3144 Sands Place (lote de 50x100) se está vendiendo junto con el lote adyacente 3146 Sands Place (lote vacío de 25x100) como un paquete por $999,999, ofreciendo un lote combinado de 75x100 (7,500 pies cuadrados) con múltiples potenciales de desarrollo. Después de un análisis de zonificación arquitectónica, hay opciones para los constructores que buscan maximizar el sitio. La Opción 1 incluye separar la propiedad en tres lotes de 25x100 y construir tres casas de 15 pies de ancho de aproximadamente 1,500 pies cuadrados cada una, diseñadas con distribuciones tipo dúplex y ADUs traseros, permitiendo un total potencial de 6 a 9 unidades dependiendo de la configuración final. La Opción 2 incluye renovar la casa existente en el lote de 50x100, convertir el garaje en un ADU de 2 habitaciones de aproximadamente 800 pies cuadrados con cocina y baño, y construir una casa adicional de 1,500 pies cuadrados con un ADU trasero, creando un total potencial de 6 unidades (2 casas de dos familias y 2 ADUs de una familia). Las aprobaciones de cercado y demolición ya están en su lugar, y los dibujos esquemáticos para la Opción 1 están incluidos en las fotos para mostrar el concepto de diseño propuesto. A solo un corto paseo del tren 6 en Westchester Avenue, cerca de tiendas locales, restaurantes, escuelas y minutos de la I-95, Hutchinson River Parkway y Pelham Bay Park; lo que hace de esta una ubicación altamente conveniente que seguirá atrayendo una fuerte demanda de inquilinos.

ID #‎ 962684
InformaciónTerreno: 0.06 acres
DOM: 1 dias
Impuestos
(por año)
$1,439
Are you the listing agent? Sign up to add your name/photo/cell to your flyers. helpdesk@Samaki.com
房屋概況 Property Description « Spanish »« ENGLISH »

Aquí hay un raro acuerdo de desarrollo en una ubicación privilegiada de Pelham Bay. 3144 Sands Place (lote de 50x100) se está vendiendo junto con el lote adyacente 3146 Sands Place (lote vacío de 25x100) como un paquete por $999,999, ofreciendo un lote combinado de 75x100 (7,500 pies cuadrados) con múltiples potenciales de desarrollo. Después de un análisis de zonificación arquitectónica, hay opciones para los constructores que buscan maximizar el sitio. La Opción 1 incluye separar la propiedad en tres lotes de 25x100 y construir tres casas de 15 pies de ancho de aproximadamente 1,500 pies cuadrados cada una, diseñadas con distribuciones tipo dúplex y ADUs traseros, permitiendo un total potencial de 6 a 9 unidades dependiendo de la configuración final. La Opción 2 incluye renovar la casa existente en el lote de 50x100, convertir el garaje en un ADU de 2 habitaciones de aproximadamente 800 pies cuadrados con cocina y baño, y construir una casa adicional de 1,500 pies cuadrados con un ADU trasero, creando un total potencial de 6 unidades (2 casas de dos familias y 2 ADUs de una familia). Las aprobaciones de cercado y demolición ya están en su lugar, y los dibujos esquemáticos para la Opción 1 están incluidos en las fotos para mostrar el concepto de diseño propuesto. A solo un corto paseo del tren 6 en Westchester Avenue, cerca de tiendas locales, restaurantes, escuelas y minutos de la I-95, Hutchinson River Parkway y Pelham Bay Park; lo que hace de esta una ubicación altamente conveniente que seguirá atrayendo una fuerte demanda de inquilinos.

Read the English version or choose another language

This information is not verified for authenticity or accuracy and is not guaranteed and may not reflect all real estate activity in the market. Listing courtesy of eXp Realty © 2026

Courtesy of eXp Realty

公司: ‍888-276-0630




分享 Share
$199,999
TERRENOS
ID # 962684
‎3146 Sands Place
Bronx, NY 10461


Listing Agent(s):‎
Are you the listing agent? Sign up to add your name and cell #‎
Oficina: ‍888-276-0630
请说您在SAMAKI.COM看此广告
请也给我ID # 962684