ALQUILAR DE COMERCIALES
Dirección: ‎1400 Route 300
Código Postal: 12550
分享到
$18
al mes
ID # 962767
Spanish
Are you the listing agent? Sign up to add your name and cell #
Houlihan Lawrence Commercial Oficina: ‍914-798-4900

$18 al mes - 1400 Route 300, Newburgh, NY 12550|ID # 962767

Property Description « Spanish »

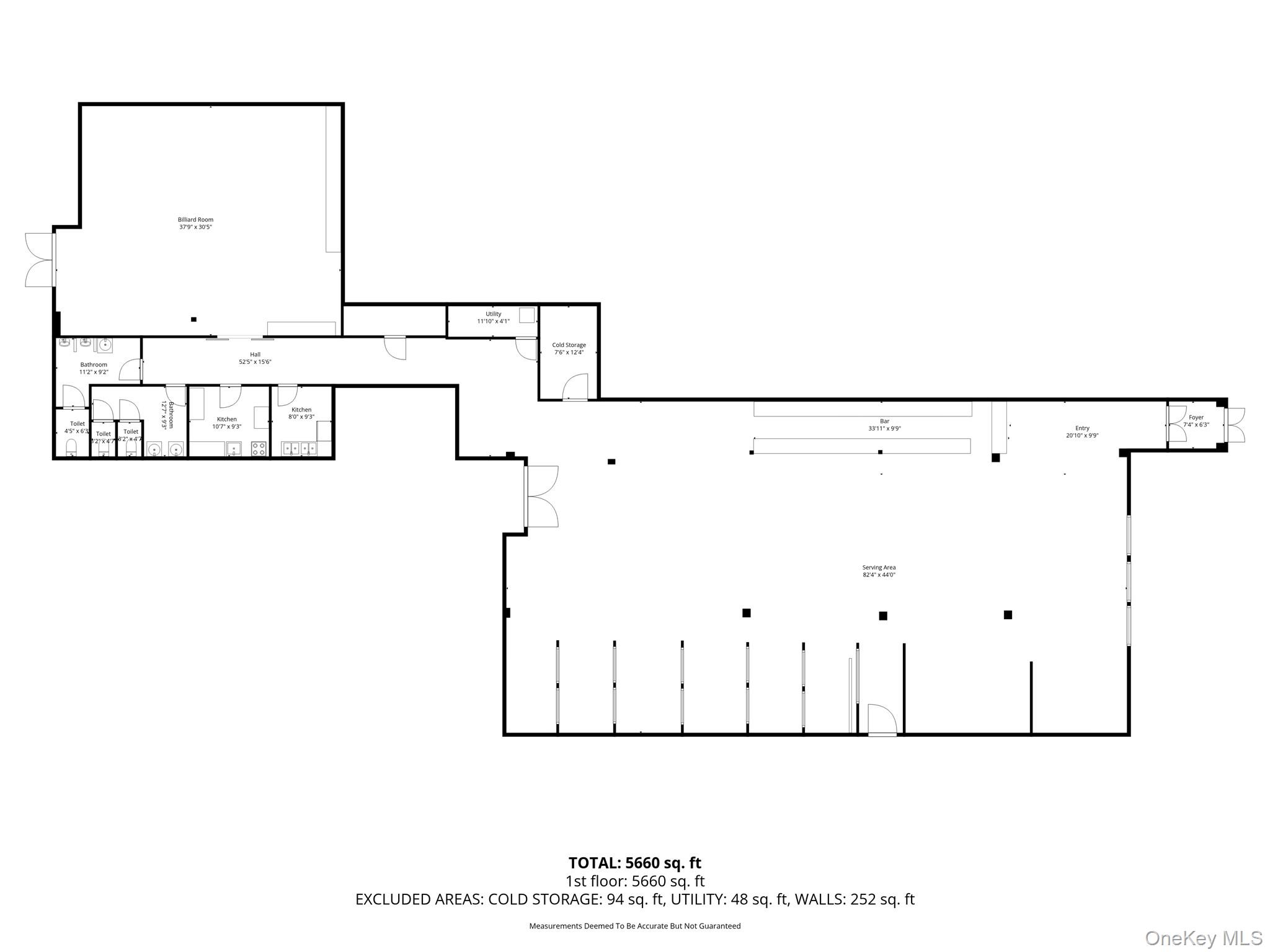
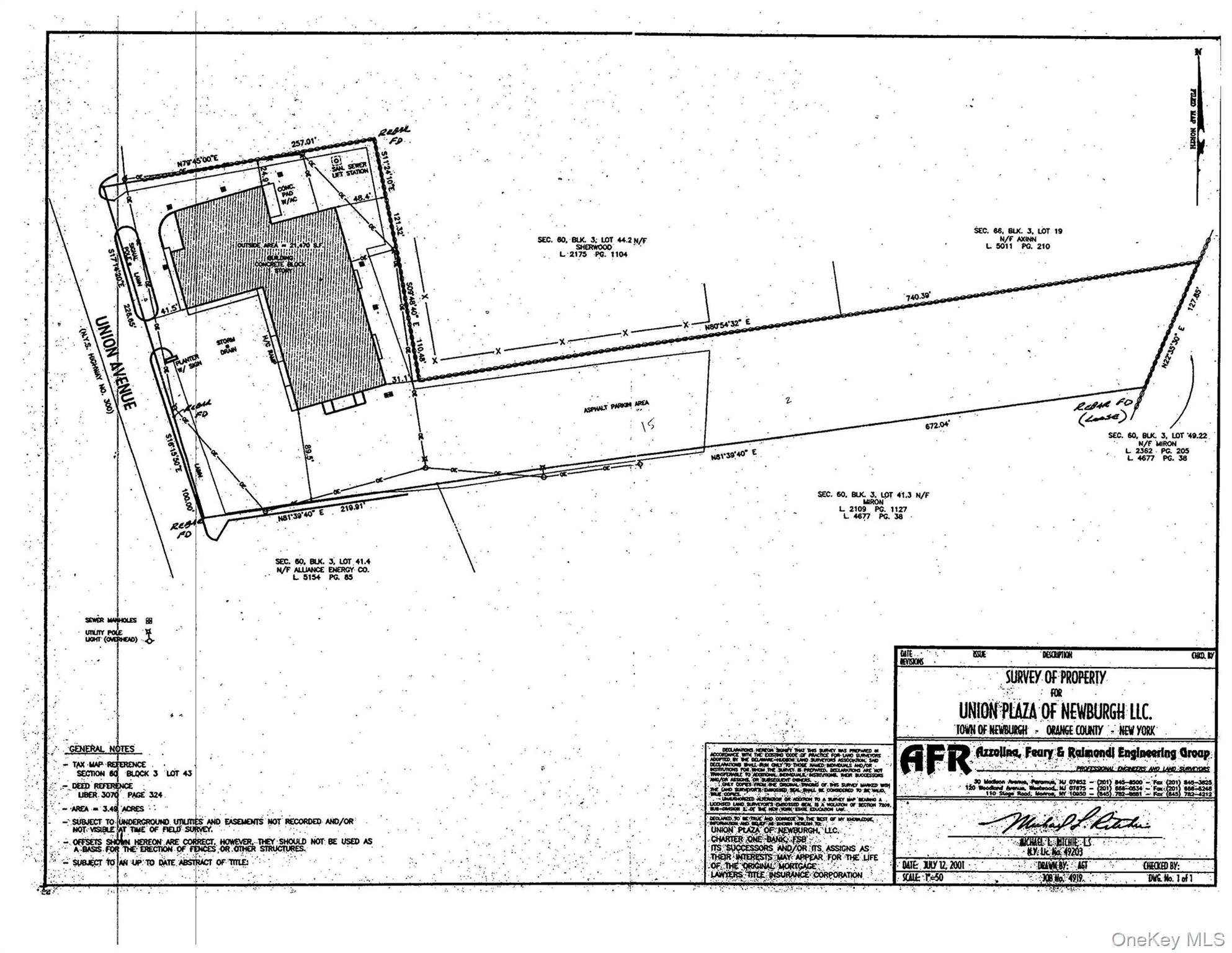
Oportunidad de Retail en Esquina de 6,100 SF | Ubicación Primordial en Newburgh

Espacio excepcional de 6,100 pies cuadrados en una plaza comercial bien establecida que ofrece una visibilidad y acceso excepcionales. Estrategicamente ubicado justo enfrente del Newburgh Mall y localizado en una entrada/salida con semáforo, proporcionando una excelente exposición y un acceso conveniente.

Rodeado de importantes minoristas nacionales y regionales, incluyendo Resort World International, HomeGoods, Stop & Shop, McDonald's, Wendy's, Hanoush Jewelers, Mattress Warehouse, entre muchos otros.

El sitio se beneficia de un impresionante conteo promedio diario de tráfico de 18,070 vehículos, proporcionando una exposición constante al consumidor.

ID #‎ 962767
Impuestos
(por año)
$75,306
Tipo de
combustible
Calefacción de gas
Aire
acondicionado
Aire central
Are you the listing agent? Sign up to add your name/photo/cell to your flyers. helpdesk@Samaki.com
房屋概況 Property Description « Spanish »« ENGLISH »

Oportunidad de Retail en Esquina de 6,100 SF | Ubicación Primordial en Newburgh

Espacio excepcional de 6,100 pies cuadrados en una plaza comercial bien establecida que ofrece una visibilidad y acceso excepcionales. Estrategicamente ubicado justo enfrente del Newburgh Mall y localizado en una entrada/salida con semáforo, proporcionando una excelente exposición y un acceso conveniente.

Rodeado de importantes minoristas nacionales y regionales, incluyendo Resort World International, HomeGoods, Stop & Shop, McDonald's, Wendy's, Hanoush Jewelers, Mattress Warehouse, entre muchos otros.

El sitio se beneficia de un impresionante conteo promedio diario de tráfico de 18,070 vehículos, proporcionando una exposición constante al consumidor.

6,100 SF End-Cap Retail Opportunity | Prime Newburgh Location

Exceptional 6,100 square foot end-cap space in a well-established shopping center offering outstanding visibility and access. Strategically positioned directly opposite the Newburgh Mall and located at a signalized entrance/exit, providing excellent exposure and convenient ingress/egress.

Surrounded by strong national and regional retailers including Resort World International, HomeGoods, Stop & Shop, McDonald’s, Wendy’s, Hanoush Jewelers, Mattress Warehouse, and many others.

The site benefits from an impressive average daily traffic count of 18,070 vehicles, delivering consistent consumer exposure.

This information is not verified for authenticity or accuracy and is not guaranteed and may not reflect all real estate activity in the market. Listing courtesy of Houlihan Lawrence Commercial © 2026

Courtesy of Houlihan Lawrence Commercial

公司: ‍914-798-4900




分享 Share
$18
al mes
ALQUILAR DE COMERCIALES
ID # 962767
‎1400 Route 300
Newburgh, NY 12550


Listing Agent(s):‎
Are you the listing agent? Sign up to add your name and cell #‎
Oficina: ‍914-798-4900
请说您在SAMAKI.COM看此广告
请也给我ID # 962767