TERRENOS
Dirección: ‎623 Lazy Point Road
Código Postal: 11930
分享到
$5,500,000
MLS # 957508
Spanish
Are you the listing agent? Sign up to add your name and cell #
Engel & Volkers North Fork Oficina: ‍631-298-7953

$5,500,000 - 623 Lazy Point Road, Amagansett, NY 11930|MLS # 957508

Property Description « Spanish »

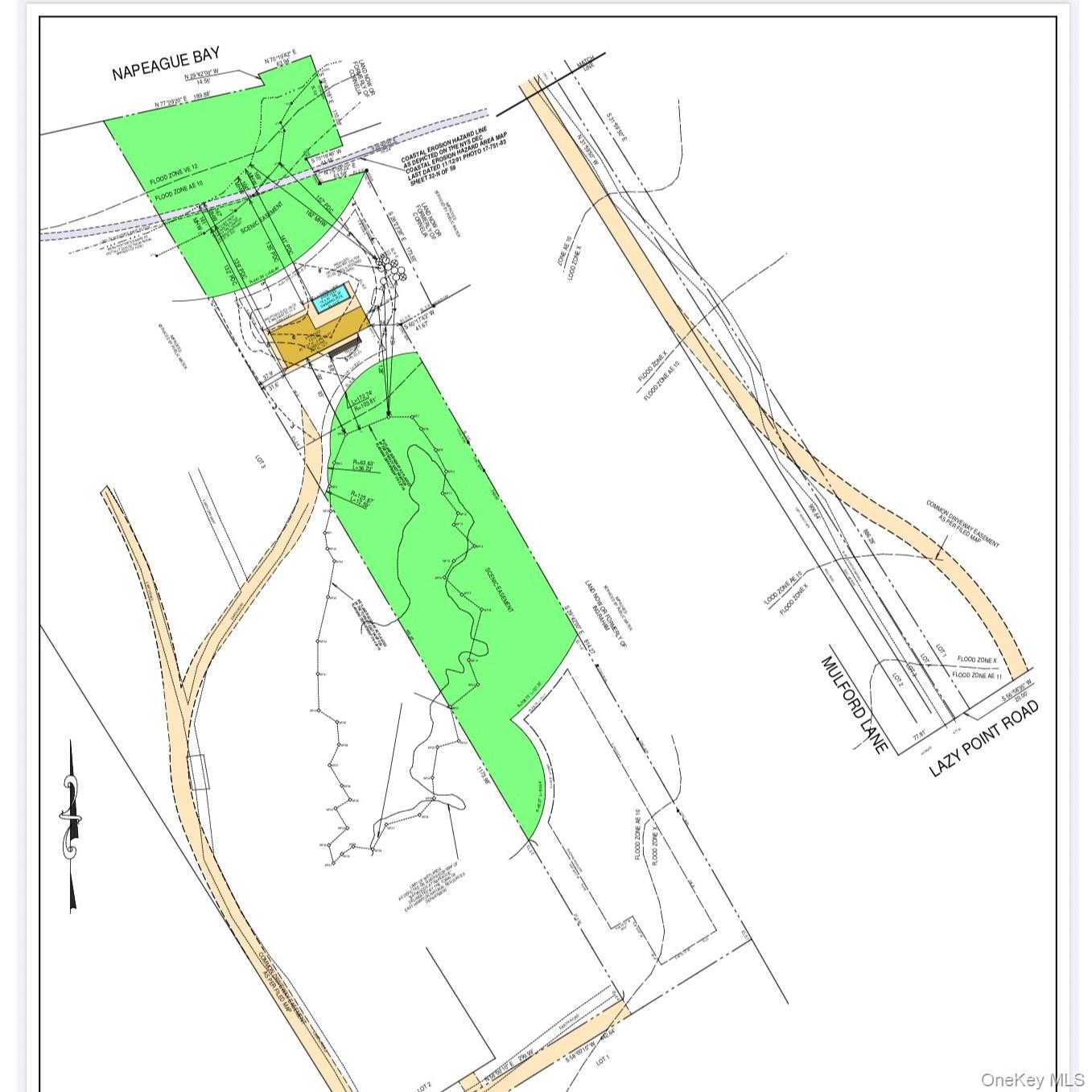
Situado en una extraordinaria parcela de 5.46 acres frente a la bahía en el codiciado enclave de Lazy Point en Amagansett, 623 Lazy Point Road presenta una oportunidad verdaderamente rara de poseer una propiedad costera de legado en uno de los entornos más privados y naturalmente bellos de los Hamptons. Con vistas amplias y sin obstrucciones a través de la bahía y un frente excepcional, la propiedad ofrece una sensación inigualable de escala, serenidad y posibilidad. La extensa superficie permite la creación de una finca sustancial, al tiempo que preserva vistas abiertas, privacidad y el carácter tranquilo que define a Lazy Point. Suaves brisas costeras, atardeceres luminosos y vistas acuáticas en constante cambio forman el telón de fondo diario, creando un entorno que se siente tanto atemporal como apartado. Esta primera parcela frente a la bahía está idealmente posicionada para una residencia personalizada diseñada para maximizar la luz, las vistas y la vida interior-exterior, con amplio espacio para comodidades frente al mar y terrenos estilo resort. Ubicada a pocos momentos de las playas del océano, el pueblo de Amagansett y lo mejor de East Hampton, pero alejada del tráfico y las multitudes, Lazy Point sigue siendo una de las comunidades costeras más discretas y restringidas de la zona. Incluye aprobación de permisos.

Una oferta de esta escala, frente y ubicación es excepcionalmente rara: una oportunidad para construir una finca generacional en los Hamptons en uno de los tramos más codiciados de frente a la bahía de Amagansett.

MLS #‎ 957508
InformaciónTerreno: 5.46 acres
DOM: 44 dias
Impuestos
(por año)
$2,814
Estación tren
LIRR
3.8 millas de la estación "Amagansett"
6.6 millas de la estación "Montauk"
Are you the listing agent? Sign up to add your name/photo/cell to your flyers. helpdesk@Samaki.com
房屋概況 Property Description « Spanish »« ENGLISH »

Situado en una extraordinaria parcela de 5.46 acres frente a la bahía en el codiciado enclave de Lazy Point en Amagansett, 623 Lazy Point Road presenta una oportunidad verdaderamente rara de poseer una propiedad costera de legado en uno de los entornos más privados y naturalmente bellos de los Hamptons. Con vistas amplias y sin obstrucciones a través de la bahía y un frente excepcional, la propiedad ofrece una sensación inigualable de escala, serenidad y posibilidad. La extensa superficie permite la creación de una finca sustancial, al tiempo que preserva vistas abiertas, privacidad y el carácter tranquilo que define a Lazy Point. Suaves brisas costeras, atardeceres luminosos y vistas acuáticas en constante cambio forman el telón de fondo diario, creando un entorno que se siente tanto atemporal como apartado. Esta primera parcela frente a la bahía está idealmente posicionada para una residencia personalizada diseñada para maximizar la luz, las vistas y la vida interior-exterior, con amplio espacio para comodidades frente al mar y terrenos estilo resort. Ubicada a pocos momentos de las playas del océano, el pueblo de Amagansett y lo mejor de East Hampton, pero alejada del tráfico y las multitudes, Lazy Point sigue siendo una de las comunidades costeras más discretas y restringidas de la zona. Incluye aprobación de permisos.

Una oferta de esta escala, frente y ubicación es excepcionalmente rara: una oportunidad para construir una finca generacional en los Hamptons en uno de los tramos más codiciados de frente a la bahía de Amagansett.

Set on an extraordinary 5.46 acres of direct bayfront in the coveted Lazy Point enclave of Amagansett, 623 Lazy Point Road presents a truly rare opportunity to own a legacy waterfront holding in one of the Hamptons’ most private and naturally beautiful settings. With sweeping, unobstructed views across the bay and exceptional frontage, the property offers an unmatched sense of scale, serenity, and possibility. The expansive acreage allows for the creation of a substantial estate while still preserving open vistas, privacy, and the tranquil character that defines Lazy Point. Gentle coastal breezes, luminous sunsets, and ever changing water views form the daily backdrop, creating a setting that feels both timeless and secluded. This premier bayfront parcel is ideally positioned for a custom residence designed to maximize light, views, and indoor-outdoor living, with ample room for waterfront amenities and resort style grounds. Located moments from ocean beaches, Amagansett Village, and the best of East Hampton, yet removed from through traffic and crowds, Lazy Point remains one of the area’s most discreet and tightly held waterfront communities. Includes permitting approval.

An offering of this scale, frontage, and location is exceptionally rare—an opportunity to build a generational Hamptons estate on one of Amagansett’s most prized stretches of bayfront.

This information is not verified for authenticity or accuracy and is not guaranteed and may not reflect all real estate activity in the market. Listing courtesy of Engel & Volkers North Fork © 2026

Courtesy of Engel & Volkers North Fork

公司: ‍631-298-7953

Other properties in this area




分享 Share
$5,500,000
TERRENOS
MLS # 957508
‎623 Lazy Point Road
Amagansett, NY 11930


Listing Agent(s):‎
Are you the listing agent? Sign up to add your name and cell #‎
Oficina: ‍631-298-7953
请说您在SAMAKI.COM看此广告
请也给我MLS # 957508