| MLS # | 956565 |
| Información | 4 dormitorios, 3 baños, lavavajillas, lavadora, secadora, garaje, Terreno: 0.19 acres, Dentro de la casa: 1494 ft2, 139m2 DOM: 41 dias |
| Año de construcción | 1952 |
| Impuestos (por año) | $10,307 |
| Tipo de combustible | Calefacción de gas |
| Sótano | Sótano Completo |
| Estación tren | 0.6 millas de la estación "Hicksville" |
| 2.2 millas de la estación "Bethpage" | |
![]() |
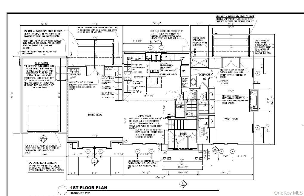
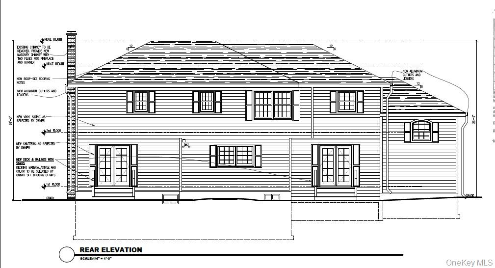
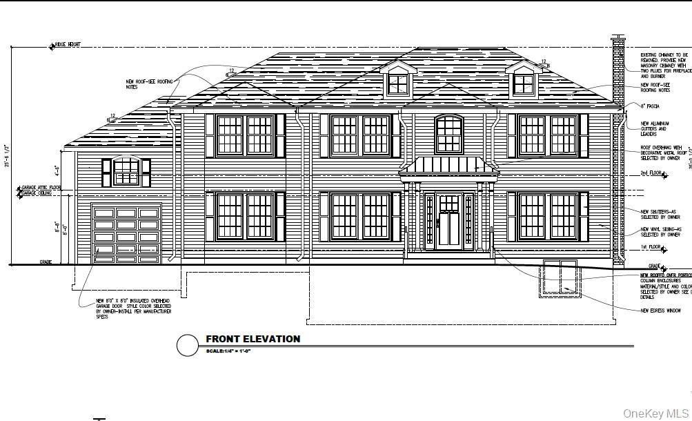
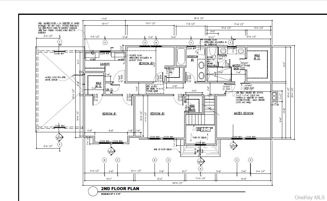
Lote sobredimensionado de 66 x 125 con permisos ya aprobados para una hermosa casa colonial de 3,400 pies cuadrados. El comprador debe completar el proyecto de construcción. Todas las variaciones y los planes de construcción están en su lugar, lo que permite al siguiente propietario comenzar a construir de inmediato, sin las demoras de planificación y aprobaciones. Esta es una oportunidad rara para diseñar la casa de tus sueños desde cero, eligiendo cada acabado para que coincida con tu estilo personal, mientras construyes un capital instantáneo significativo. Los planos personalizados se pueden ajustar con retrasos mínimos. La casa actualmente es un Cape con 4 dormitorios, pisos de madera y cocina actualizada. Tiene un sótano completo y es perfecta para alguien que busca un proyecto y la oportunidad de crear algo verdaderamente especial. No busques más: haz de esta propiedad tu hogar.
Oversized 66 x 125 lot with permits already approved for a gorgeous 3,400 sq ft Colonial. Buyer to complete the construction project. All variances and building plans are in place, allowing the next owner to start building right away—without the delays of planning and approvals. This is a rare opportunity to design your dream home from the ground up, choosing every finish to match your personal style, while building significant instant equity. The custom plans can be tweaked with minimal delays. The home currently sits as a Cape with 4 bedrooms, wood floors, updated kitchen. Full basement and is perfect for someone looking for a project and the opportunity to create something truly special. Look no further—make this property your own.
This information is not verified for authenticity or accuracy and is not guaranteed and may not reflect all real estate activity in the market. Listing courtesy of Weichert Realtors Performance © 2026







