Islip, NY

CASA EN VENTA

Dirección: ‎158 Moffitt Boulevard

Código Postal: 11751

3 dormitorios, 1 baño, 1080ft2

分享到

$585,000

MLS # 953490

Spanish

CASA ABIERTA
Sat Jan 24th, 2026 @ 11 AM
Sun Jan 25th, 2026 @ 12:30 PM

Are you the listing agent? Sign up to add your name and cell #

Exit Realty Achieve Oficina: ‍631-543-2009

$585,000 - 158 Moffitt Boulevard, Islip, NY 11751|MLS # 953490

Property Description « Spanish »

Esta es la casa que has estado esperando. Esta casa tipo Cape de 3 dormitorios y 1.5 baños está situada en un terreno de poco menos de media acre de propiedad plana y completamente cercada que ofrece privacidad natural. Las características exteriores incluyen una piscina enterrada de 16x32, áreas de terraza en la parte delantera y trasera, y un amplio garaje para dos coches que proporciona suficiente espacio para vehículos, almacenamiento o pasatiempos. La casa también ofrece un sótano completo con potencial adicional para vivir o almacenar. Los destacados interiores incluyen aire acondicionado central, calefacción a gas y una cocina recientemente actualizada. Convenientemente ubicada a menos de una milla de la estación de tren. Con un poco de cariño, esta propiedad presenta una gran oportunidad para disfrutar tanto de la casa como del extenso jardín. Imperdible en el área de Islip.

MLS #‎ 953490
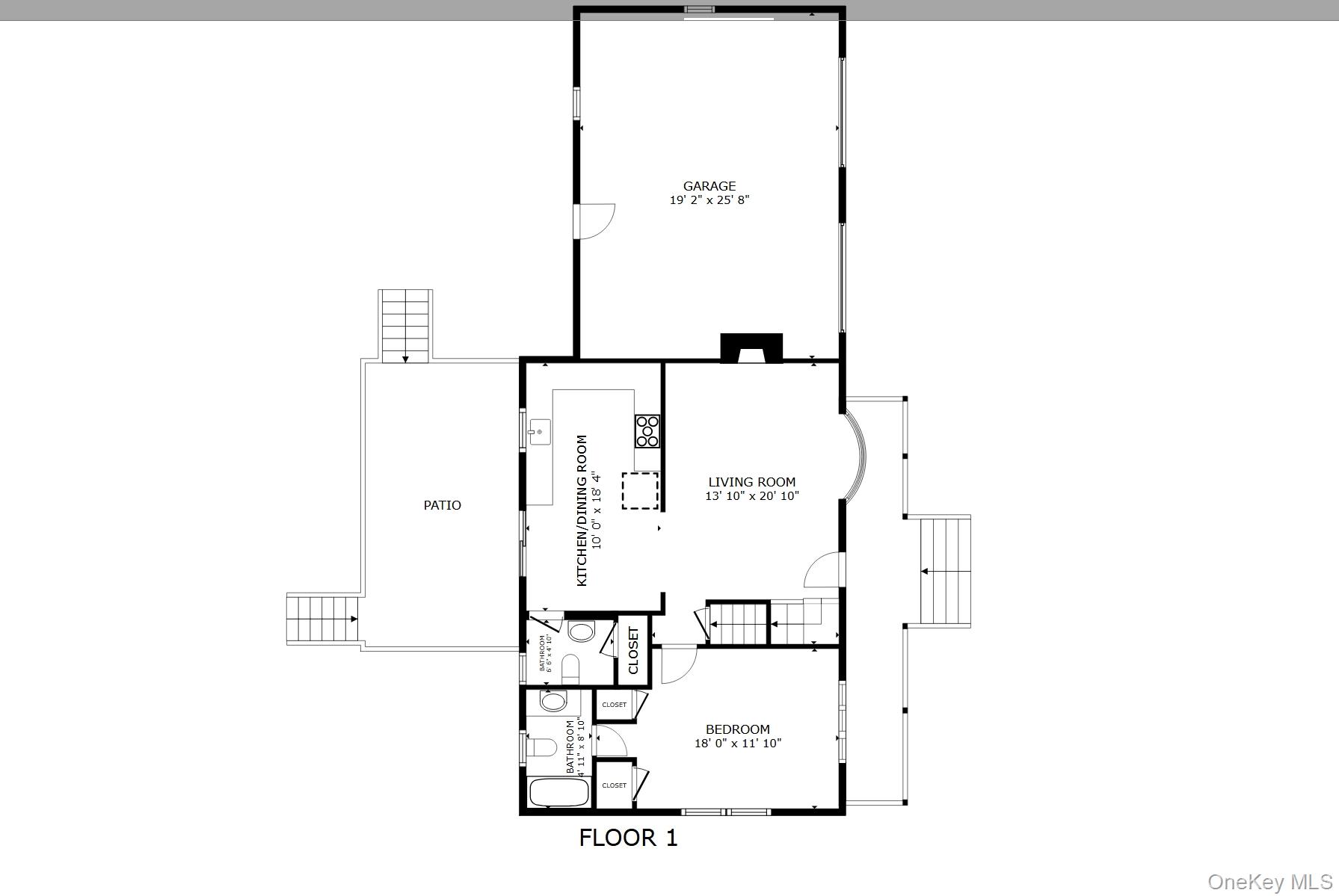
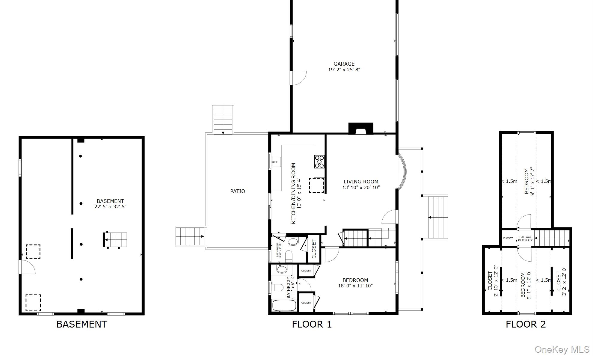
Información3 dormitorios, 1 baño, lavavajillas, lavadora, secadora, garaje, AC, Terreno: 0.43 acres, Dentro de la casa: 1080 ft2, 100m2
DOM: 1 dias
Año de construcción
1957
Impuestos
(por año)
$13,327
Tipo de
combustible
Calefacción de gas
Tipo de calorAire Caliente
Aire
acondicionado
Aire central
SótanoSótano Completo

Are you the listing agent? Sign up to add your name/photo/cell to your flyers. helpdesk@Samaki.com

房屋概況 Property Description « Spanish »« ENGLISH »

Esta es la casa que has estado esperando. Esta casa tipo Cape de 3 dormitorios y 1.5 baños está situada en un terreno de poco menos de media acre de propiedad plana y completamente cercada que ofrece privacidad natural. Las características exteriores incluyen una piscina enterrada de 16x32, áreas de terraza en la parte delantera y trasera, y un amplio garaje para dos coches que proporciona suficiente espacio para vehículos, almacenamiento o pasatiempos. La casa también ofrece un sótano completo con potencial adicional para vivir o almacenar. Los destacados interiores incluyen aire acondicionado central, calefacción a gas y una cocina recientemente actualizada. Convenientemente ubicada a menos de una milla de la estación de tren. Con un poco de cariño, esta propiedad presenta una gran oportunidad para disfrutar tanto de la casa como del extenso jardín. Imperdible en el área de Islip.

This is the home you have been waiting for. This 3-bedroom, 1.5-bath Cape is situated on just under half an acre of flat, fully fenced property offering natural privacy. Exterior features include a 16x32 inground pool, front and rear deck areas, and a spacious two-car garage providing ample room for vehicles, storage, or hobbies. The home also offers a full basement with additional living or storage potential. Interior highlights include central air, gas heating, and a recently updated kitchen. Conveniently located less than one mile from the train station. With a little TLC, this property presents a great opportunity to enjoy both the home and expansive yard. A must-see in the Islip area. © 2025 OneKey™ MLS, LLC

Courtesy of Exit Realty Achieve

公司: ‍631-543-2009

周边物业 Other properties in this area




分享 Share

$585,000

CASA EN VENTA
MLS # 953490
‎158 Moffitt Boulevard
Islip, NY 11751
3 dormitorios, 1 baño, 1080ft2


Listing Agent(s):‎
Are you the listing agent? Sign up to add your name and cell #‎

Oficina: ‍631-543-2009

请说您在SAMAKI.COM看此广告

请也给我MLS # 953490