| ID # | 951312 |
| Información | Terreno: 0.23 acres DOM: 65 dias |
| Impuestos (por año) | $3,903 |
![]() |
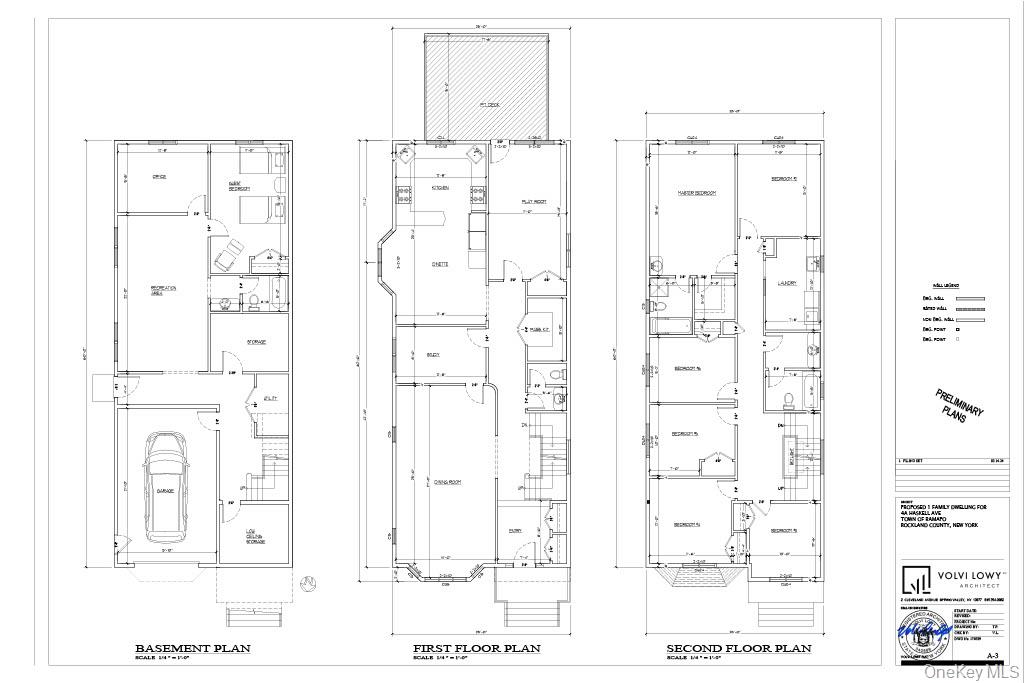
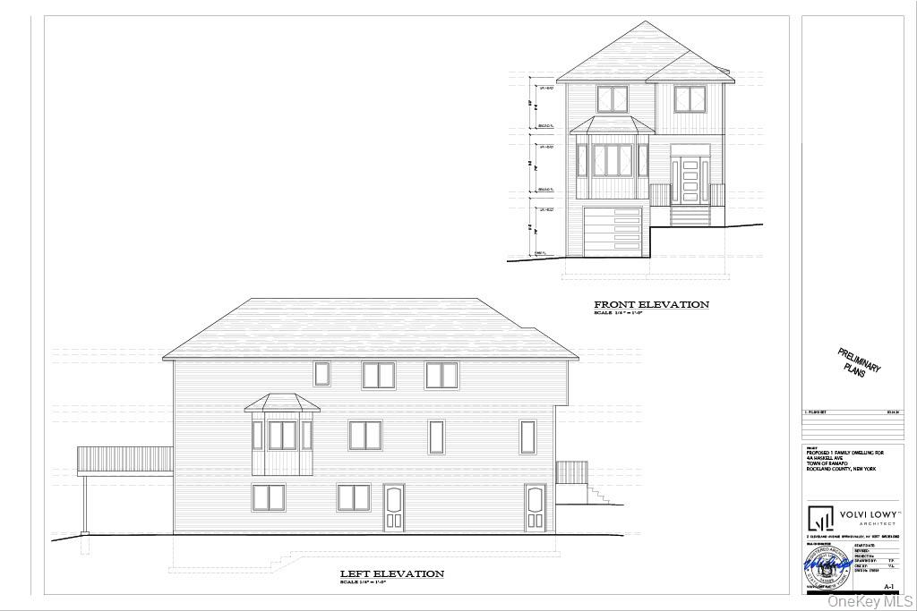
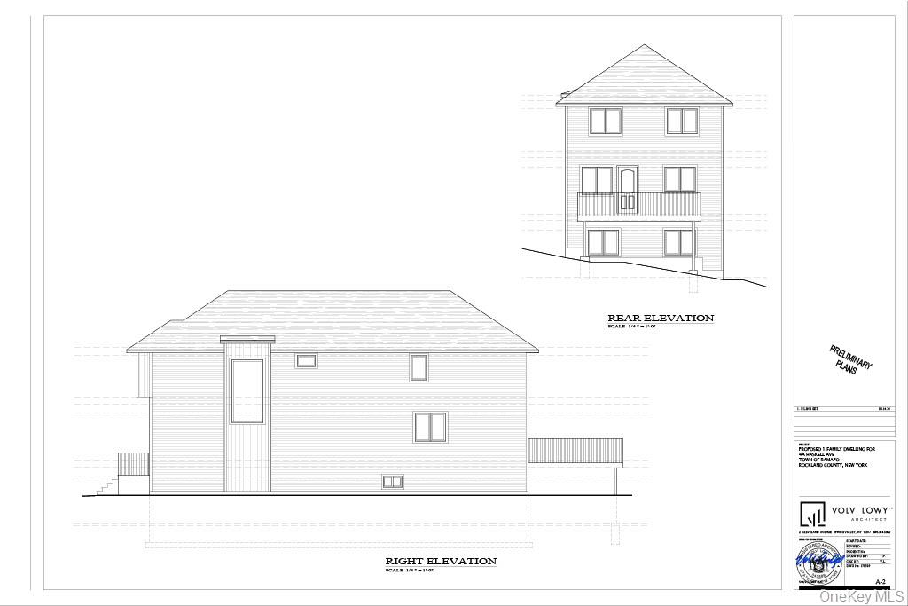
Oportunidad excepcional para desarrollar un terreno de 0.23 acres en el Village de Suffern con planes APROBADOS para aproximadamente 4,000 pies cuadrados, sujetos a los requisitos del sistema de rociadores. Este lote nivelado ofrece una ventaja significativa al permitir que la construcción avance sin los retrasos típicamente asociados con el proceso de aprobación. Los planes aprobados proporcionan un marco claro para maximizar el potencial de la propiedad mientras se cumplen los requisitos locales. Convenientemente ubicado cerca de tiendas, transporte y carreteras principales, esta propiedad combina preparación, flexibilidad y valor a largo plazo. Una oportunidad rara de adquirir terreno con aprobaciones en su lugar en una ubicación deseable del condado de Rockland.
Outstanding opportunity to develop a 0.23-acre parcel in the Village of Suffern with APPROVED plans for approximately 4,000 square feet, subject to sprinkler system requirements. This level lot offers a significant advantage by allowing construction to move forward without the delays typically associated with the approval process. The approved plans provide a clear framework to maximize the property’s potential while meeting local requirements. Conveniently located near shopping, transportation, and major roadways, this property combines readiness, flexibility, and long-term value. A rare chance to acquire land with approvals in place in a desirable Rockland County location.
This information is not verified for authenticity or accuracy and is not guaranteed and may not reflect all real estate activity in the market. Listing courtesy of Keller Williams Valley Realty © 2026







