| ID # | RLS20065240 |
| Información | 4 dormitorios, 2 baños, lavadora, secadora, garaje, Dentro de la casa: 3200 ft2, 297m2, edificio tiene 3 viviendas, edificio tiene 3 pisos DOM: 120 dias |
| Año de construcción | 1915 |
| Autobús | 2 minutos hasta B62 |
| 3 minutos hasta B67 | |
| 4 minutos hasta B57, B69 | |
| Metro | 6 minutos hasta F |
| Estación tren | 1.4 millas de la estación "Atlantic Terminal" |
| 2.4 millas de la estación "Nostrand Avenue" | |
![]() |
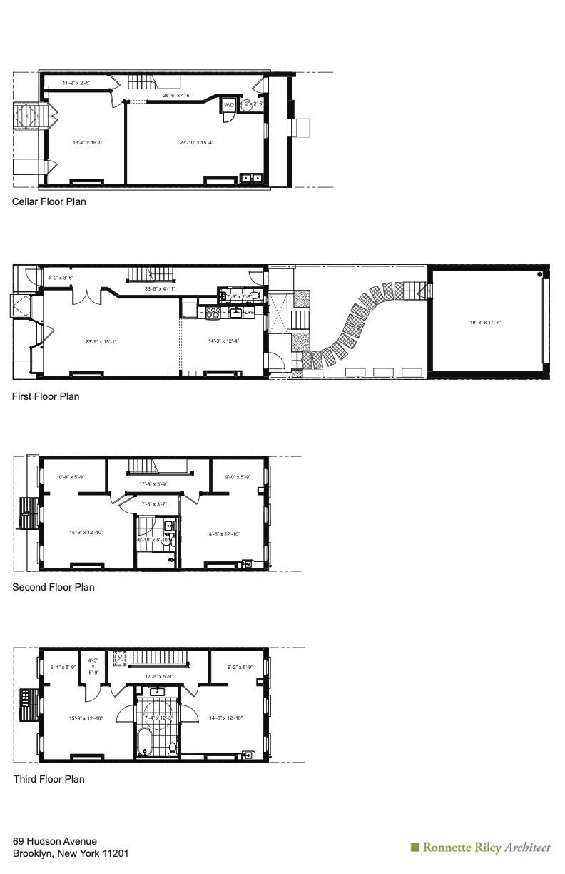
Ubicado en una tranquila esquina adoquinada del histórico Vinegar Hill, y a solo unos momentos de DUMBO, del paseo marítimo del Brooklyn Bridge Park, del centro de Brooklyn y del Navy Yard, esta casa de estilo townhouse, un hito de 1817 modernizado con su propio GARAGE PRIVADO PARA DOS VEHÍCULOS, combina sin esfuerzo el carácter histórico con las comodidades contemporáneas. Una de las tres casas en fila originales que aún permanecen con detalles de escaparates intactos, la vivienda ha recibido una renovación integral y completamente nueva.
•• También disponible para opciones de alquiler a corto plazo — por favor consulte para más detalles. ••
Con una extensión de tres pisos más un nivel inferior parcialmente terminado — aproximadamente 3200 pies en total — las meticulosas actualizaciones incluyen: todo nuevo sistema eléctrico, plomería, control climático zonificado, paredes y ventanas aisladas, pisos de madera de roble blanco, carpintería personalizada, encimeras de cuarzo, y electrodomésticos y accesorios de energía eficiente completamente nuevos.
El nivel del vestíbulo cuenta con un espacio abierto de sala/comedor acentuado por una chimenea de leña sin ductos, una cocina personalizada con comedor que da acceso directo al jardín y un baño de cortesía.
Una escalera central restaurada coronada por una claraboya conduce a los dos pisos superiores, que son soleados y tranquilos. Los dormitorios, de generosas proporciones, son luminosos y ventilados, ocupando el ancho de la casa, con tres ventanas tanto en la parte delantera como en la trasera, complementados por armarios vestidores o almacenamiento en alcobas, así como dos baños de gran tamaño.
El nivel inferior multifuncional cuenta con una nueva lavadora/secadora, lavabo de utilidad, amplio almacenamiento y acceso al patio trasero. Al aire libre, el jardín trasero de toda profundidad es pintoresco y privado, mientras proporciona acceso al garage independiente —frente a la semi-privada Harrison Alley— que ofrece un estacionamiento raro y seguro.
Vinegar Hill conserva un encanto distintivo y oculto donde los favoritos locales como Vinegar Hill House y Café Gitane están junto a los aspectos culturales, recreativos y comerciales de DUMBO: el Brooklyn Bridge Park de 85 acres, el Almacén de St. Ann, el carrusel de Jane, el Mercado Time Out, entre otros. A solo una parada de Manhattan en el tren F, cerca del ferry de transporte y las líneas A y C.
Algunas fotos tienen representación virtual. Se consideran mascotas caso por caso.
El primer mes de alquiler y un mes de depósito de seguridad deben pagarse al firmar el contrato de arrendamiento.
Evaluación de crédito: $20 por solicitante.
Set on a quiet cobblestoned corner of historic Vinegar Hill – and just moments from DUMBO, the Brooklyn Bridge Park waterfront, Downtown Brooklyn, and Navy Yard – this modernized 1817 landmarked townhouse with its own PRIVATE TWO-CAR GARAGE seamlessly blends historic character with contemporary appointments. One of just three original rowhouses still standing with intact storefront details, the home has just received a brand new, full-scale renovation.
•• Also available for shorter-term lease options — please inquire for details. ••
Spanning three stories plus a partially finished lower level – approx 3200 ft in total – the meticulous upgrades include: all-new electrical, plumbing, zoned climate control, insulated walls and windows, white oak hardwood flooring, custom millwork, quartz countertops, and brand-new energy-efficient appliances and fixtures.
The parlor level features an open living / dining space accented by a ventless Hearth fireplace, a custom eat-in kitchen with direct yard access, and a powder room.
A restored central stair crowned by a skylight leads to the upper two floors, which are sunswept and quiet. The generously proportioned bedrooms are bright and airy and span the width of the home, with three windows at both front and rear, complemented by walk-in closets or alcove storage as well as two oversized bathrooms.
The multipurpose lower level has a new washer/dryer, utility sink, abundant storage, and access to the rear yard. Outdoors, the full-depth backyard is quaint and private while providing access to the detached garage – fronting semi-private Harrison Alley – that offers rare, secure parking.
Vinegar Hill retains a distinctive, tucked-away charm where local favorites like Vinegar Hill House and Café Gitane sit alongside DUMBO’s cultural, recreational and retail highlights: 85-acre Brooklyn Bridge Park, St. Ann’s Warehouse, Jane’s Carousel, Time Out Market, among others. Just one stop into Manhattan on the F train, nearby to commuter ferry and A & C lines.
Some photos virtually staged. Pets considered on a case-by-case basis.
First Month's Rent & One Month Security Deposit due at lease signing
Credit Screening: $20/per applicant
This information is not verified for authenticity or accuracy and is not guaranteed and may not reflect all real estate activity in the market. ©2025 The Real Estate Board of New York, Inc., All rights reserved.







