| ID # | 11616163 |
| Información | 4 dormitorios, 3 baños, AC, Terreno: 0.17 acres, Dentro de la casa: 2905 ft2, 270m2, edificio tiene 3 pisos DOM: 51 dias |
| Año de construcción | 2025 |
| Sitio web en inglés | |
| Estación tren | 6.5 millas de la estación "Great River" |
| 6.6 millas de la estación "Oakdale" | |
![]() |
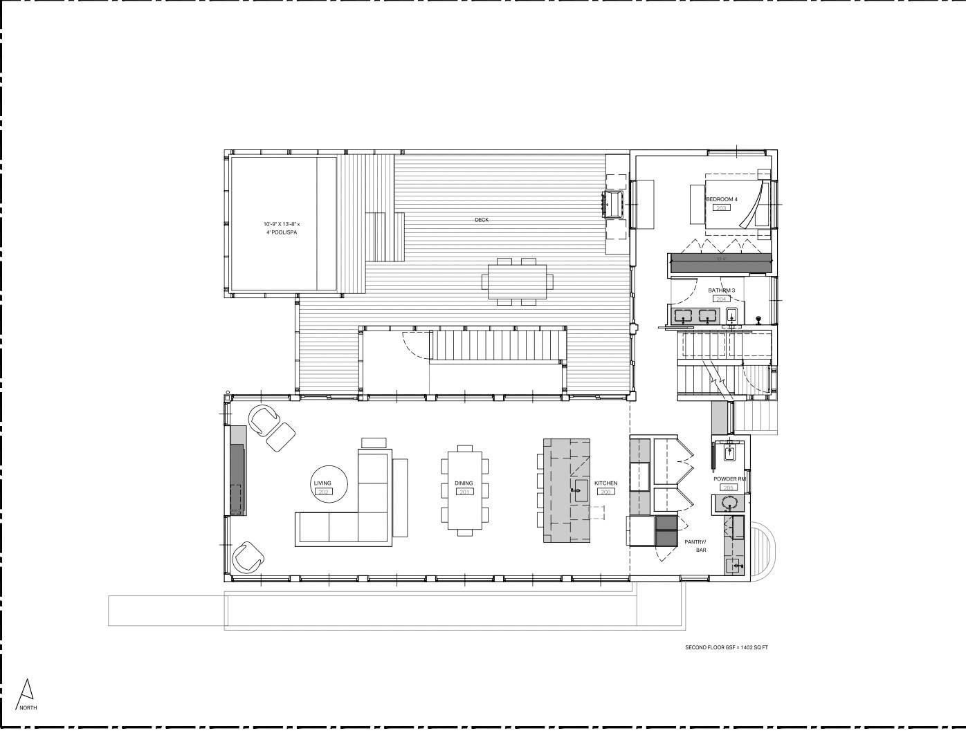
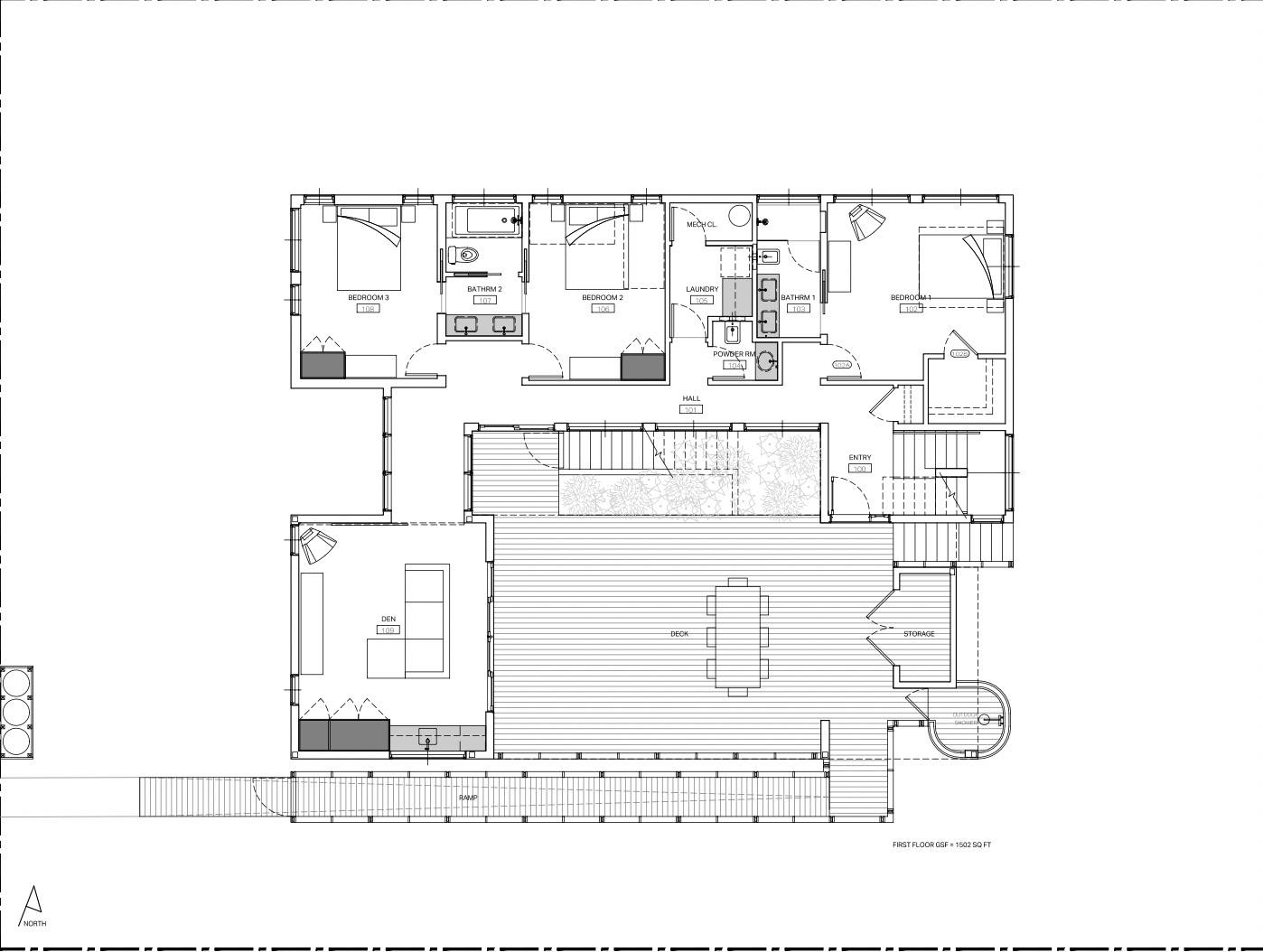
Discover the future of coastal living at this breathtaking new build in West Ocean Bay Park. Spanning 2,904 square feet and designed by the acclaimed Coughlin Scheel Architects, this 4-bedroom, 3-full bath, 2-half bath home combines sleek contemporary sophistication with the timeless beauty of Fire Island. Set on a 75' x 100' lot once home to an Andrew Geller original, the design pays homage to its mid-century roots while offering today's most luxurious amenities. Wrapped in rich mahogany, the home's exterior makes a bold architectural statement. From the siding to the ceilings and expansive decks, the use of this warm, natural wood enhances both durability and design. The result is a seamless connection between structure and setting, where timeless craftsmanship meets coastal modern living. The first floor is designed to accommodate both convenience and style. It features three well-appointed bedrooms, including a spacious primary suite complete with an ensuite bathroom and walk-in closet. With 2.5 bathrooms on this level, each space boasts sleek, modern fixtures that provide both function and elegance. A versatile den offers additional space for work or leisure, while a wet bar complete with built-in storage ensures every necessity has its place. Step outside to enjoy a covered private deck boasting ocean breezes, outdoor shower, and the beautifully landscaped entry ramp that enhances accessibility. With 1,502 square feet of space, the first floor combines practicality with sophistication. Upstairs, the second floor unfolds into 1,402 square feet of light-filled living. The 2nd primary suite serves as a serene retreat with sweeping bay views and a private en suite bath with direct access to the second floor deck. A chef's kitchen overlooks the dining area and flows seamlessly to the expansive living room. Additional features like a walk-in pantry, powder room and wet bar make this floor as practical as it is beautiful. Walking out to the main deck to take in unforgettable sunsets over the Great South Bay, or enjoy them from the second-floor pool. Crowning the home, the third-floor roof deck offers some of the most expansive views on Fire Island. From this vantage point, you can take in the Robert Moses Bridge, the historic Fire Island Lighthouse, and the full sweep of both East and West Fire Island. It is the ultimate sunset spot - a place where sky and water meet in a panorama of color, creating an unforgettable backdrop for evenings with family and friends. With its open, airy layout, premium finishes, and striking blend of indoor and outdoor spaces, this home defines modern seaside living. Every detail has been carefully considered, making it a rare opportunity to own a piece of Fire Island's architectural legacy reimagined for today.







