| MLS # | 909048 |
| Información | 2 dormitorios, 1 baño, Dentro de la casa: 1250 ft2, 116m2 DOM: 126 dias |
| Año de construcción | 1956 |
| Cuotas de mantenimiento | $1,268 |
| Tipo de combustible | Eléctrico |
| Tipo de calor | Agua Caliente |
| Autobús | 1 minutos hasta Q65 |
| 3 minutos hasta Q12, Q17, Q25, Q26, Q27, Q34 | |
| 6 minutos hasta Q15, Q15A | |
| 7 minutos hasta Q20A, Q20B, Q44 | |
| 9 minutos hasta Q13, Q16, Q28, Q58 | |
| 10 minutos hasta Q48 | |
| Metro | 10 minutos hasta 7 |
| Estación tren | 0.5 millas de la estación "Flushing Main Street" |
| 0.6 millas de la estación "Murray Hill" | |
![]() |
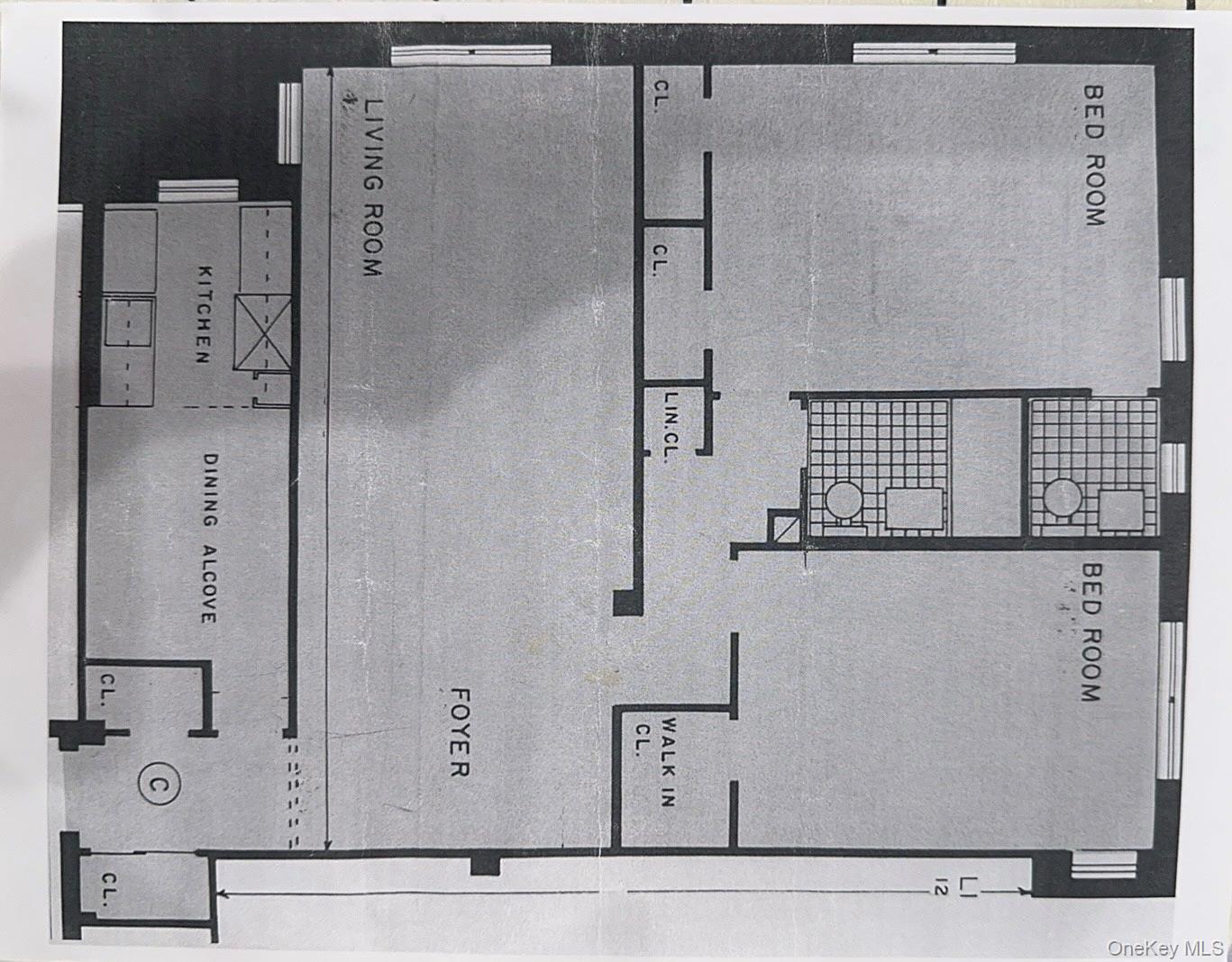
Esta unidad esquinera en el 5º piso disfruta de abundante luz solar con ventanas que miran al oeste, norte y sur. Este espacioso apartamento de aproximadamente 1250 pies cuadrados, con dos habitaciones, está en excelente estado y ubicado idealmente en el corazón de Flushing, a solo unos minutos a pie de Main Street y la Biblioteca de Flushing, convenientemente cerca de transporte, supermercados y muchos restaurantes tradicionales. Este edificio bien mantenido, con nuevo ascensor, permite subarrendar y tener mascotas con aprobación rápida de la junta. El subarriendo está disponible de inmediato. La ventana de la cocina mira al sur. La gran ventana de la sala de estar mira al sur. La habitación 1 tiene ventanas que miran al oeste y norte. La habitación 2 tiene ventanas que miran al sur y oeste. El medio baño en la habitación 2 tiene una ventana que mira al oeste. Solo compradores en efectivo. Renovado recientemente hace 5 años.
This is 5th - floor corner unit enjoys abundant sunlight with windows facing west, north, and south. This spacious, approximately 1250 sqaure - foot, two bedoom apartment is in excellent condition and ideally located in the heart of Flushing, just a few minutes walk from Main Street an the Flushing Library, conveniently located near transportation, supermarkets and many traditional restaurants. This well-maintained, new elevator building allows subletting and pets with quick board approval. Subletting is available immediately. The kitchen window faces south. The large living room window faces south. Bedroom 1 has windows facing west and north. Bedroom 2 has windows facing south and west. The half-bathroom in bedroom 2 has a west-facing window. Cash buyers only. newly renovated 5 years ago. © 2025 OneKey™ MLS, LLC







