| MLS # | 876220 |
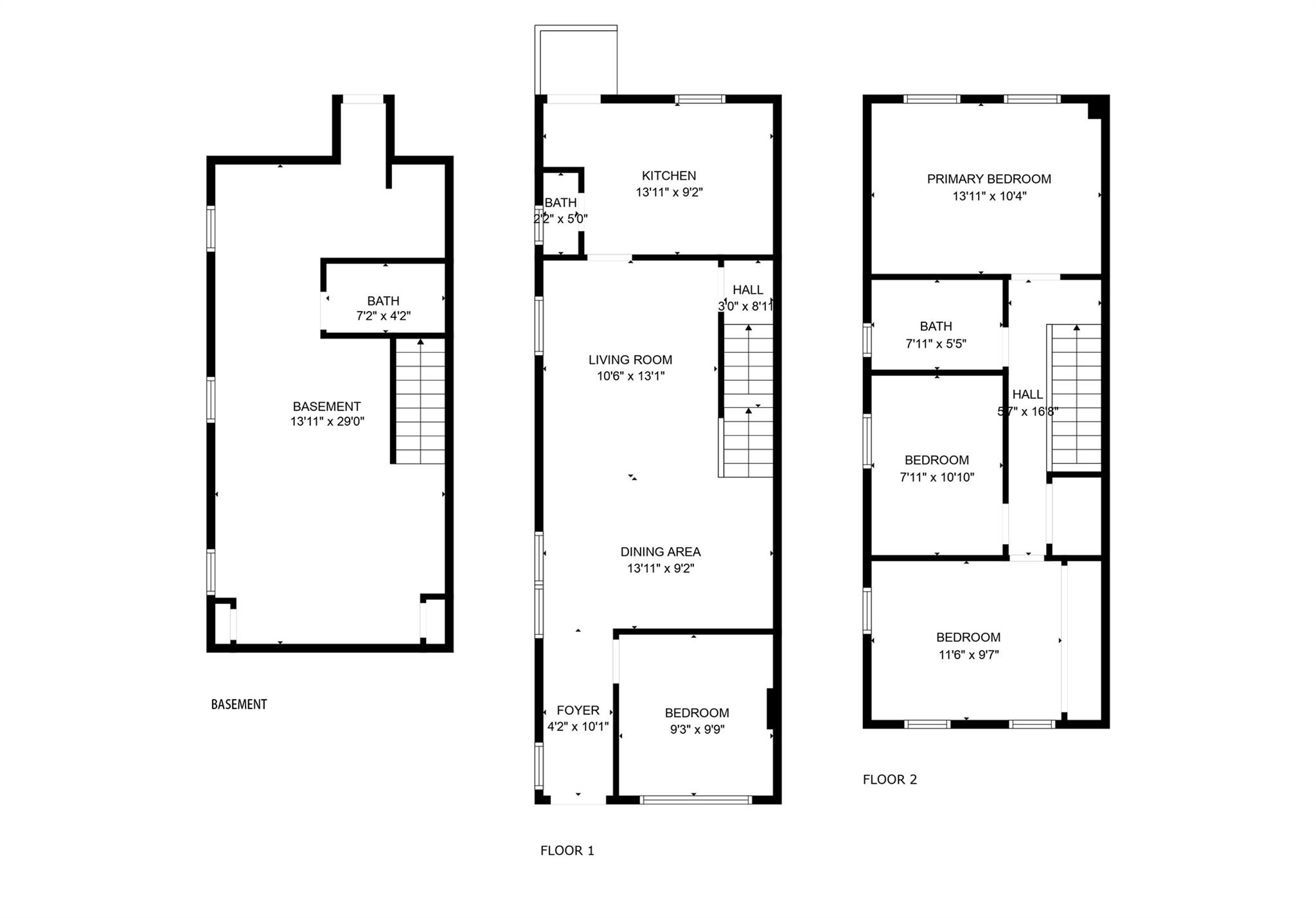
| Información | 4 dormitorios, 2 baños, garaje, Terreno: 0.05 acres, Dentro de la casa: 1403 ft2, 130m2 |
| Año de construcción | 1930 |
| Impuestos (por año) | $7,081 |
| Autobús | 2 minutos hasta Q28, Q76 |
| 5 minutos hasta Q31 | |
| 8 minutos hasta Q16 | |
| Estación tren | 0.4 millas de la estación "Auburndale" |
| 0.8 millas de la estación "Broadway" | |
![]() |
Esta impresionante casa unifamiliar cuenta con 4 dormitorios, 2 baños completos y 1 medio baño, diseñada para una vida moderna. Brillante y aireada, el espacio está bañado en luz natural a través de numerosas ventanas. La caldera recién instalada garantiza calidez durante los meses de invierno, y el sótano terminado añade espacio extra. Las renovaciones recientes reflejan un estilo elegante y sofisticado. El diseño de entrada independiente proporciona privacidad y comodidad. Un patio privado ofrece espacio para disfrutar al aire libre, y un garaje privado facilita el estacionamiento. Ubicada en una zona deseable con fácil acceso al transporte público y a tiendas cercanas, la estructura de ladrillo adosada la convierte en un santuario perfecto.
This stunning single-family home features 4 bedrooms and 2 full baths and 1 half bath, designed for modern living. Bright and airy, the space is bathed in natural light through numerous windows. The newly installed boiler ensures warmth during winter months, and the finished basement adds extra space. Recent renovations reflect a sleek and elegant style. The separate entrance design provides privacy and convenience. A private yard offers space for outdoor enjoyment, and a private garage facilitates easy parking. Located in a desirable area with easy access to public transportation and nearby shopping, the semi-detached brick structure makes it a perfect sanctuary. © 2025 OneKey™ MLS, LLC







